Maison neuve à
Aigné (72650) Référence : FH2325207_5

Prix du projet : Maison avec Terrain

prix 329 000 €

  • 6 pièces
  • 3 chambres
  • Surface maison 128 m2

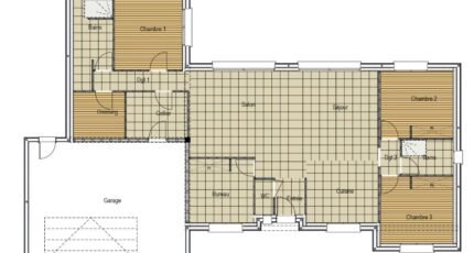
VENTE d'une maison T6 (128 m²) à Aigné
IDÉALEMENT SITUÉE - MAISON 6 PIÈCES NEUVE
À vendre : située à 11 km du Mans, idéalement située dans Aigné (72650), Maine Construction Le Mans vous présente cette maison de 6 pièces de plain-pied de 128 m². Son intérieur offre trois chambres, une cuisine et deux salles de bains.
Le terrain de la propriété s'étend sur 780 m².
Cette maison est neuve.
La maison se situe dans un quartier convoité. On trouve l'École Primaire Publique Roger Bazille à moins de 10 minutes à pied. Côté transports en commun, il y a quatre gares à moins de 10 minutes en voiture. Il y a un accès à l'autoroute A11 à 4 km. On trouve un tennis à proximité.
Elle est à vendre pour la somme de 329 000 €.
Contactez notre agence (François HOUDAYER : 06-23-38-26-90) pour tout renseignement sur la maison, sur les modalités de vente ou sur les démarches à suivre.

Mentions légales

Terrain proposé par un partenaire foncier selon disponibilités et autorisation de publicité au prix de 52 000 €. Hors droit d'enregistrement et frais de notaire. Maison proposée, avec un contrat de construction de maison individuelle, dans le cadre de la loi du 19/12/1990, au prix de 277 000 € (Hors branchements et raccordements, papiers peints, peintures, revêtement de sol dans les chambres, qui sont chiffrés dans les travaux qui restent à charge du client. Tarif modifiable sans préavis). Étiquette énergie : A. Différents modèles disponibles pour ce terrain. Assurances et garanties du constructeur comprises (RC professionnelle, décennale, dommage ouvrage).

Contactez l'agence de Le Mans

02 43 21 93 33

    * Champs obligatoires

    Vos informations sont traitées par HEXAOM et transmises à un conseiller commercial qui vous contactera afin de répondre à votre demande. Les plans et images présentés sur notre site sont la propriété d’HEXAOM et ne peuvent pas être reproduits sans son accord. Pour retrouver notre politique de protection des données personnelles et exercer vos droits conformément à la « loi informatique et liberté » cliquez-ici.