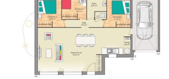
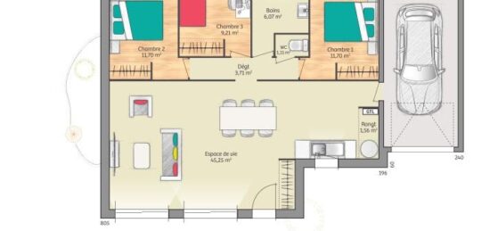
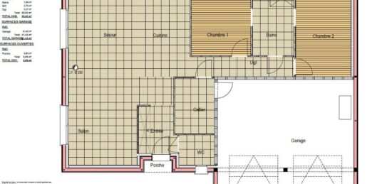
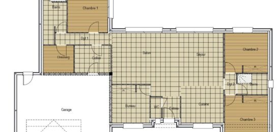
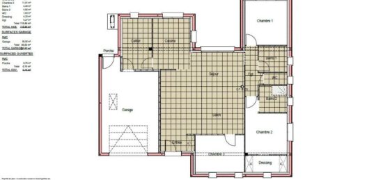
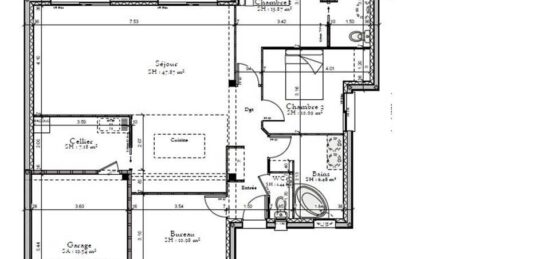
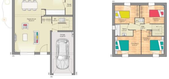
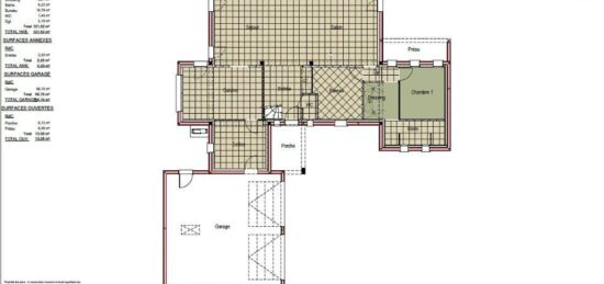
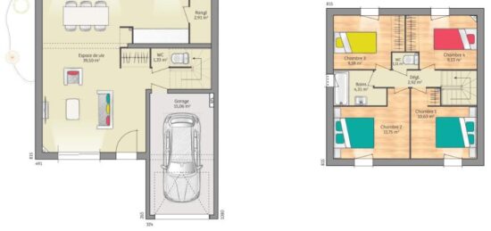
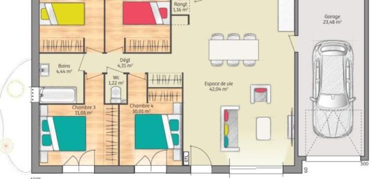
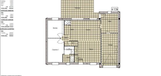
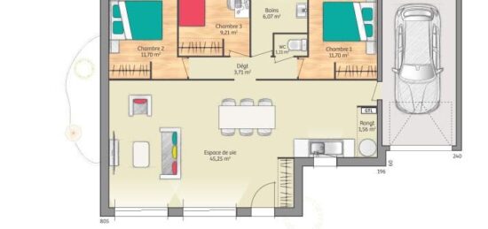
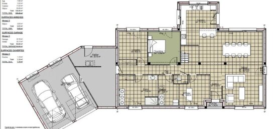
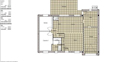
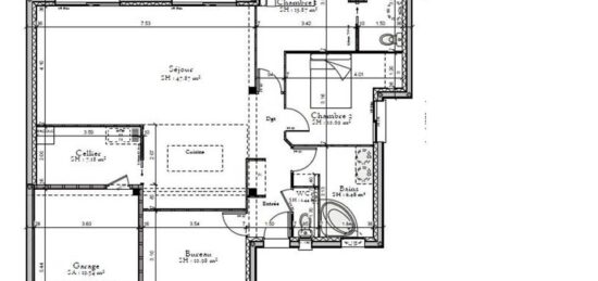
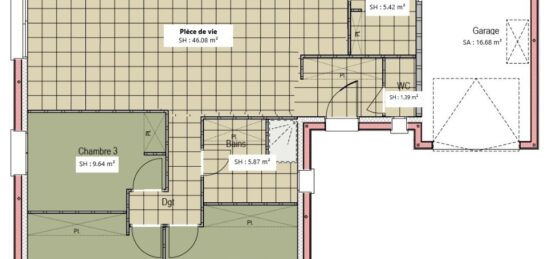
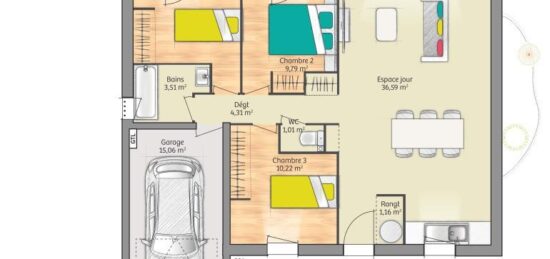
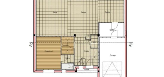
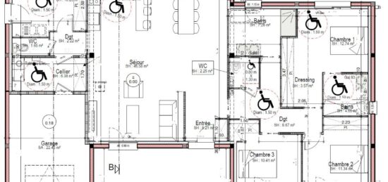
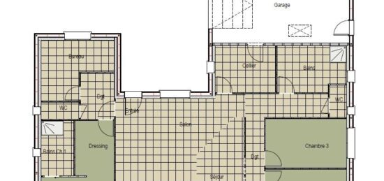
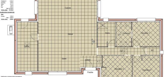
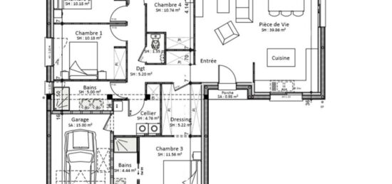
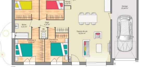
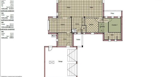
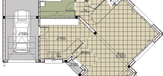
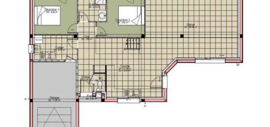
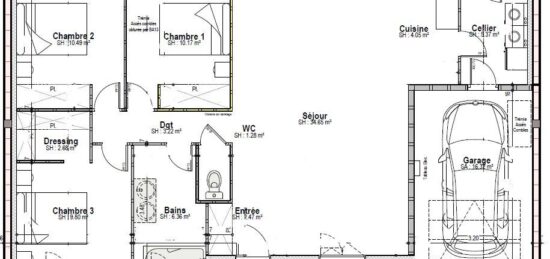
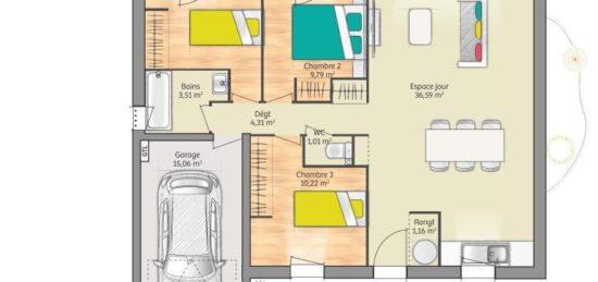
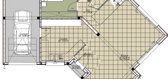
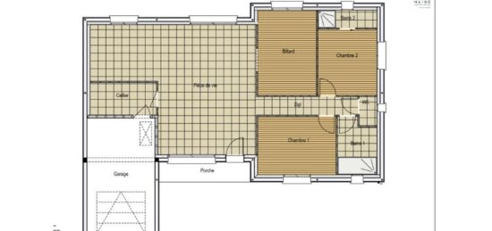
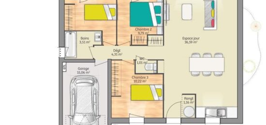
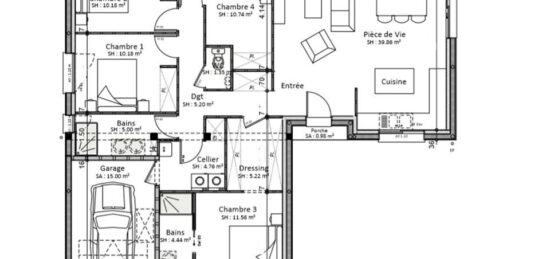
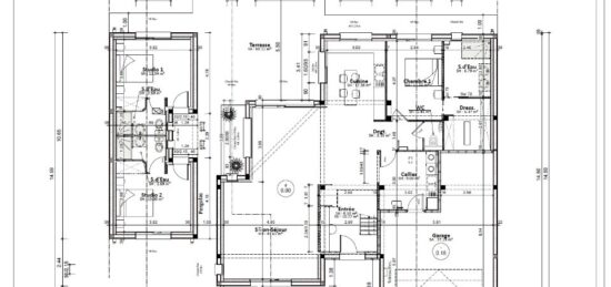
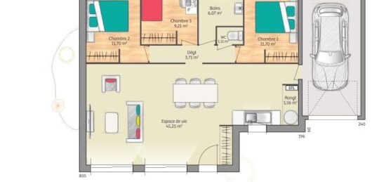
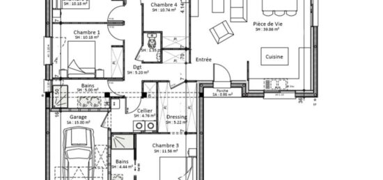
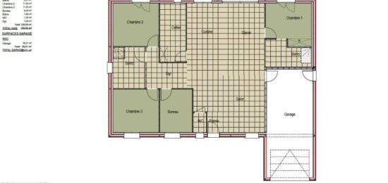
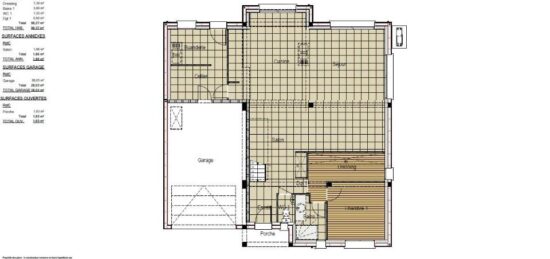
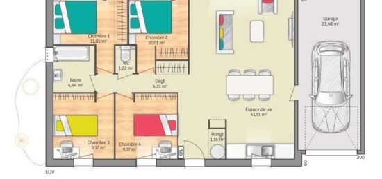
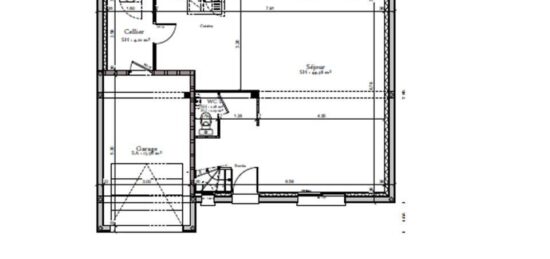
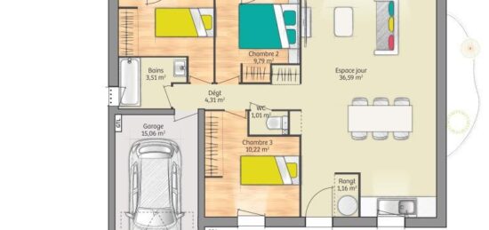
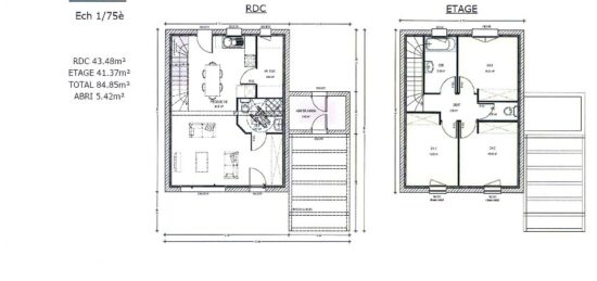
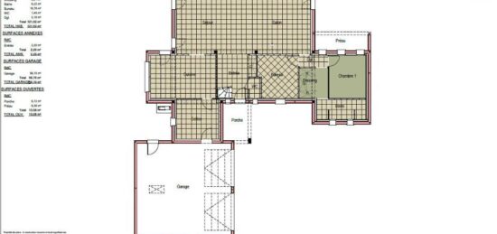
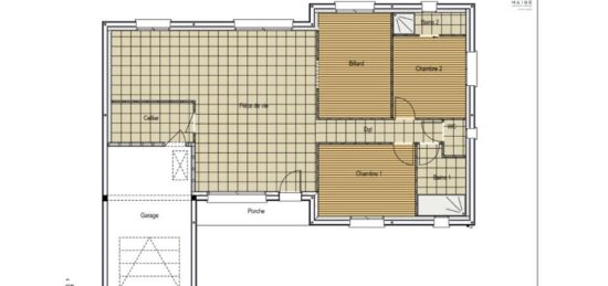
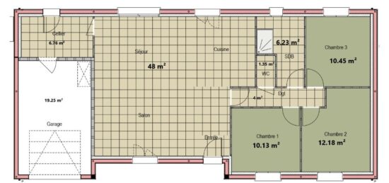
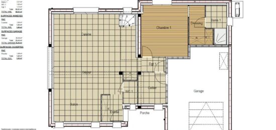
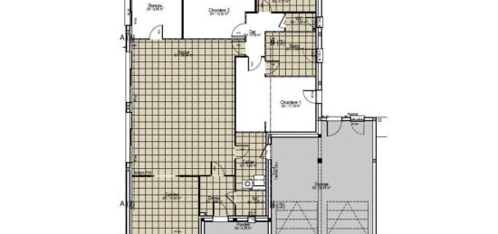
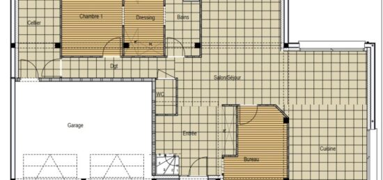
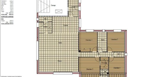
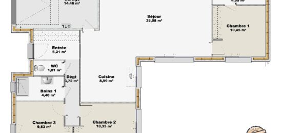
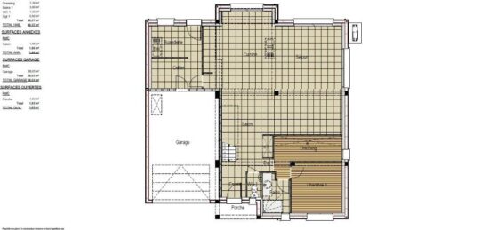
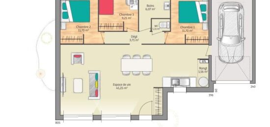
545 Nos Maisons neuves à vendre

En collaboration avec nos partenaires fonciers les équipes Maine Construction dénichent des terrains pour vous proposer des offres terrain + maison qui répondent à vos besoins.

Pour rester informé de nos nouvelles offres, configurez-vos alertes !

Constructeur de maison proche de vous

Trouver un
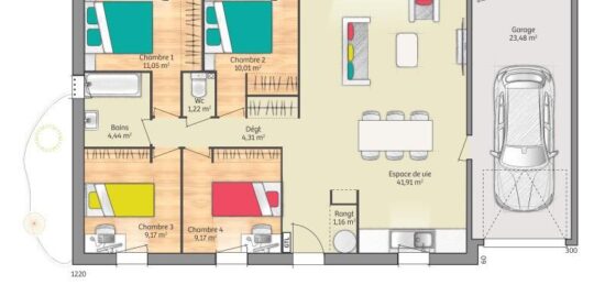
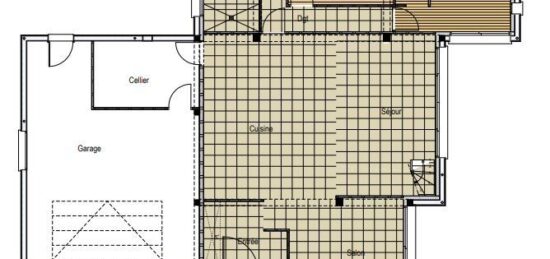
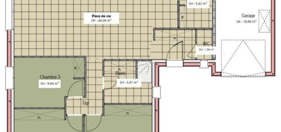
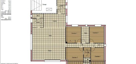
Terrain + maison

545 annonces identifiées

Type de bien

Type de bien

Emplacement

Où construire ma maison

Toute la Sarthe

Caractéristiques

Caractéristiques du bien

Nombre de chambres

Plusieurs choix possibles

Nombre de pièces

Plusieurs choix possibles

Surface

Surface habitable

m2
m2
Prix

Prix