Maison neuve à
Aigné (72650) Référence : LL2325646_3

Prix du projet : Maison avec Terrain

prix 265 000 €

  • 6 pièces
  • 2 chambres
  • Surface maison 88 m2

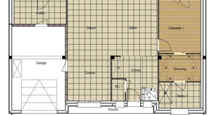
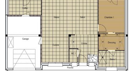
VENTE d'une maison de 6 pièces (88 m²) à Aigné
IDÉALEMENT SITUÉE - MAISON 6 PIÈCES NEUVE
En vente : localisée à quelques kilomètres du Mans, découvrez cette maison de 6 pièces de 88 m² idéalement située dans Aigné (72650). Son intérieur propose deux chambres, une cuisine et deux salles de bains.
Le terrain de la propriété est de 780 m².
Il s'agit d'une maison de 2 niveaux. Elle est neuve.
La maison est située dans un quartier convoité. L'École Primaire Publique Roger Bazille se trouve à moins de 10 minutes à pied. Côté transports, il y a quatre gares à moins de 10 minutes en voiture. L'autoroute A11 est accessible à 4 km. On trouve un tennis dans les environs.
Elle est à vendre pour la somme de 265 000 €.
Prenez contact avec notre agence (LIVET Luc : 07-77-76-37-30) pour plus d'informations sur la maison ou sur les modalités de vente. Maine Construction Le Mans vous accompagne à toutes les étapes de l'achat et dans toutes vos démarches.

Mentions légales

Terrain proposé par un partenaire foncier selon disponibilités et autorisation de publicité au prix de 52 000 €. Hors droit d'enregistrement et frais de notaire. Maison proposée, avec un contrat de construction de maison individuelle, dans le cadre de la loi du 19/12/1990, au prix de 213 000 € (Hors branchements et raccordements, papiers peints, peintures, revêtement de sol dans les chambres, qui sont chiffrés dans les travaux qui restent à charge du client. Tarif modifiable sans préavis). Étiquette énergie : A. Différents modèles disponibles pour ce terrain. Assurances et garanties du constructeur comprises (RC professionnelle, décennale, dommage ouvrage).

Contactez l'agence de Le Mans

02 43 21 93 33

    * Champs obligatoires

    Vos informations sont traitées par HEXAOM et transmises à un conseiller commercial qui vous contactera afin de répondre à votre demande. Les plans et images présentés sur notre site sont la propriété d’HEXAOM et ne peuvent pas être reproduits sans son accord. Pour retrouver notre politique de protection des données personnelles et exercer vos droits conformément à la « loi informatique et liberté » cliquez-ici.