Maison neuve à
Saint-Saturnin (72650) Référence : LL2347878_2

Prix du projet : Maison avec Terrain

prix 255 000 €

  • 6 pièces
  • 4 chambres
  • Surface maison 89 m2

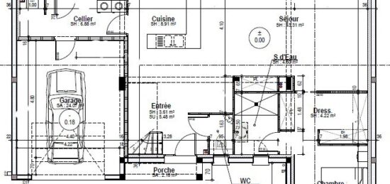
VENTE d'une maison T6 (89 m²) à Saint-Saturnin
EMPLACEMENT PRIVILÉGIÉ - MAISON 6 PIÈCES NEUVE
En vente à quelques kilomètres du Mans, Maine Construction Le Mans vous présente cette maison de 6 pièces de 89 m² et de 361 m² de terrain bénéficiant d'un emplacement privilégié dans Saint-Saturnin (72650). Elle propose quatre chambres, une cuisine et une salle de bains.
Cette maison comporte 2 niveaux. Elle est neuve.
La maison se situe dans un secteur recherché. Il y a l'École Élémentaire Publique les 7 Plûmes, l'École Maternelle Publique le Petit Monde et le Lycée Agricole Privé les Horizons-Site de Saint Saturnin à moins de 10 minutes à pied et une crèche. Niveau transports, on trouve trois gares (Neuville-sur-Sarthe, La Guierche et Le Mans) à moins de 10 minutes en voiture. L'autoroute A11 est accessible à 1 km. Il y a un bassin de natation, un tennis, une boulangerie, un commerce et une épicerie à proximité du logement.
Elle est à vendre pour la somme de 255 000 €.
Prenez contact avec notre agence (LIVET Luc : 07-77-76-37-30) pour toute information sur la maison. Maine Construction Le Mans vous accompagne à toutes les étapes de votre projet et dans tous vos projets immobiliers.

Mentions légales

Terrain proposé par un partenaire foncier selon disponibilités et autorisation de publicité au prix de 70 000 €. Hors droit d'enregistrement et frais de notaire. Maison proposée, avec un contrat de construction de maison individuelle, dans le cadre de la loi du 19/12/1990, au prix de 185 000 € (Hors branchements et raccordements, papiers peints, peintures, revêtement de sol dans les chambres, qui sont chiffrés dans les travaux qui restent à charge du client. Tarif modifiable sans préavis). Étiquette énergie : A. Différents modèles disponibles pour ce terrain. Assurances et garanties du constructeur comprises (RC professionnelle, décennale, dommage ouvrage).

Contactez l'agence de Le Mans

02 43 21 93 33

    * Champs obligatoires

    Vos informations sont traitées par HEXAOM et transmises à un conseiller commercial qui vous contactera afin de répondre à votre demande. Les plans et images présentés sur notre site sont la propriété d’HEXAOM et ne peuvent pas être reproduits sans son accord. Pour retrouver notre politique de protection des données personnelles et exercer vos droits conformément à la « loi informatique et liberté » cliquez-ici.