Maison neuve à
Aigné (72650) Référence : FH2325207_2

Prix du projet : Maison avec Terrain

prix 265 000 €

  • 6 pièces
  • 3 chambres
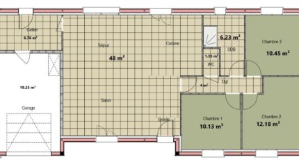
  • Surface maison 99 m2

VENTE d'une maison de 6 pièces (99 m²) à Aigné
IDÉALEMENT SITUÉE - MAISON 6 PIÈCES NEUVE
À vendre à quelques kilomètres du Mans, idéalement située dans Aigné (72650), Maine Construction Le Mans vous présente cette maison de 6 pièces de plain-pied de 99 m². Conçue de plain-pied, elle se divise en trois chambres, une cuisine et une salle de bains.
Le terrain de la maison s'étend sur 780 m².
La maison est neuve.
Ce bien se trouve dans un quartier convoité. L'École Primaire Publique Roger Bazille est implantée à moins de 10 minutes à pied. Côté transports, on trouve quatre gares à moins de 10 minutes en voiture. Il y a un accès à l'autoroute A11 à 4 km. Il y a un tennis dans les environs.
Il est proposé à l'achat pour 265 000 €.
N'hésitez pas à prendre contact avec François HOUDAYER (06-23-38-26-90) pour toute information sur la maison et sur les modalités de vente.

Mentions légales

Terrain proposé par un partenaire foncier selon disponibilités et autorisation de publicité au prix de 52 000 €. Hors droit d'enregistrement et frais de notaire. Maison proposée, avec un contrat de construction de maison individuelle, dans le cadre de la loi du 19/12/1990, au prix de 213 000 € (Hors branchements et raccordements, papiers peints, peintures, revêtement de sol dans les chambres, qui sont chiffrés dans les travaux qui restent à charge du client. Tarif modifiable sans préavis). Étiquette énergie : A. Différents modèles disponibles pour ce terrain. Assurances et garanties du constructeur comprises (RC professionnelle, décennale, dommage ouvrage).

Contactez l'agence de Le Mans

02 43 21 93 33

    * Champs obligatoires

    Vos informations sont traitées par HEXAOM et transmises à un conseiller commercial qui vous contactera afin de répondre à votre demande. Les plans et images présentés sur notre site sont la propriété d’HEXAOM et ne peuvent pas être reproduits sans son accord. Pour retrouver notre politique de protection des données personnelles et exercer vos droits conformément à la « loi informatique et liberté » cliquez-ici.