Maison neuve à
Aigné (72650) Référence : FH2325207_14

Prix du projet : Maison avec Terrain

prix 239 000 €

  • 3 pièces
  • 2 chambres
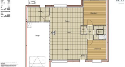
  • Surface maison 83 m2

VENTE d'une maison de 3 pièces (83 m²) à Aigné
IDÉALEMENT SITUÉE - MAISON 3 PIÈCES NEUVE
À vendre : localisée à deux pas du Mans, découvrez cette maison de 3 pièces de plain-pied de 83 m² et de 780 m² de terrain idéalement située dans Aigné (72650). Conçue de plain-pied, elle dispose de deux chambres, d'une cuisine et d'une salle de bains.
La maison est neuve.
Cette maison se trouve dans un secteur convoité. L'École Primaire Publique Roger Bazille est implantée à moins de 10 minutes à pied. Niveau transports, on trouve quatre gares à moins de 10 minutes en voiture. L'autoroute A11 est accessible à 4 km. Il y a un tennis à proximité du bien.
Son prix de vente est de 239 000 €.
Prenez contact avec François HOUDAYER (tél : 06-23-38-26-90) pour tout renseignement sur la maison.

Mentions légales

Terrain proposé par un partenaire foncier selon disponibilités et autorisation de publicité au prix de 52 000 €. Hors droit d'enregistrement et frais de notaire. Terrain + Maison proposés au prix de 187 000 € (Hors branchements et raccordements, papiers peints, peintures, revêtement de sol dans les chambres. Tarif modifiable sans préavis). Etiquette énergie : A. Différents modèles disponibles pour ce terrain. Assurances et garanties du constructeur (RC professionnelle, décennale, dommage ouvrage, garantie de remboursement de l'acompte, livraison à prix et délai convenu) : https://www.maine-construction.fr/mentions-legales/. HEXAOM Services est enregistré auprès de l'ORIAS en tant que Courtier en financement, Niveau 1, sous le numéro 14001345.

Contactez l'agence de Le Mans

02 43 21 93 33

    * Champs obligatoires

    Vos informations sont traitées par HEXAOM et transmises à un conseiller commercial qui vous contactera afin de répondre à votre demande. Les plans et images présentés sur notre site sont la propriété d’HEXAOM et ne peuvent pas être reproduits sans son accord. Pour retrouver notre politique de protection des données personnelles et exercer vos droits conformément à la « loi informatique et liberté » cliquez-ici.