Maison neuve à
Aigné (72650) Référence : FH2325207_9

Prix du projet : Maison avec Terrain

prix 198 000 €

  • 3 pièces
  • 1 chambre
  • Surface maison 70 m2

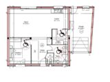
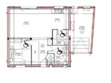
VENTE d'une maison T3 (70 m²) à Aigné
IDÉALEMENT SITUÉE - MAISON 3 PIÈCES NEUVE
À vendre : à 11 km du Mans, nous sommes ravis de vous présenter cette maison de 3 pièces de plain-pied de 70 m² idéalement située dans Aigné (72650).
Conçue de plain-pied, elle inclut une chambre, une cuisine et une salle de bains. Cette maison est neuve.
Le terrain de la propriété s'étend sur 780 m².
La maison est située dans un secteur attractif. L'École Primaire Publique Roger Bazille est implantée à moins de 10 minutes à pied. Niveau transports, on trouve quatre gares à moins de 10 minutes en voiture. Il y a un accès à l'autoroute A11 à 4 km. Il y a un tennis dans les environs.
Elle est proposée à l'achat pour 198 000 €.
Contactez notre agence (François HOUDAYER : 06-23-38-26-90) pour plus d'informations sur la maison.

Mentions légales

Terrain proposé par un partenaire foncier selon disponibilités et autorisation de publicité au prix de 52 000 €. Hors droit d'enregistrement et frais de notaire. Maison proposée, avec un contrat de construction de maison individuelle, dans le cadre de la loi du 19/12/1990, au prix de 146 000 € (Hors branchements et raccordements, papiers peints, peintures, revêtement de sol dans les chambres, qui sont chiffrés dans les travaux qui restent à charge du client. Tarif modifiable sans préavis). Étiquette énergie : A. Différents modèles disponibles pour ce terrain. Assurances et garanties du constructeur comprises (RC professionnelle, décennale, dommage ouvrage).

Contactez l'agence de Le Mans

02 43 21 93 33

    * Champs obligatoires

    Vos informations sont traitées par HEXAOM et transmises à un conseiller commercial qui vous contactera afin de répondre à votre demande. Les plans et images présentés sur notre site sont la propriété d’HEXAOM et ne peuvent pas être reproduits sans son accord. Pour retrouver notre politique de protection des données personnelles et exercer vos droits conformément à la « loi informatique et liberté » cliquez-ici.