Maison neuve à
Voivres-lès-le-Mans (72210) Référence : LL2453229_4

Prix du projet : Maison avec Terrain

prix 169 000 €

  • 3 pièces
  • 2 chambres
  • Surface maison 65 m2

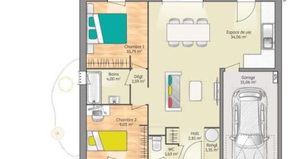
VENTE : maison F3 (65 m²) à Voivres-lès-le-Mans
EMPLACEMENT PRIVILÉGIÉ - MAISON 3 PIÈCES NEUVE
À vendre à 11 km du Mans, votre agence Maine Construction Le Mans est heureuse de vous proposer cette maison de 3 pièces de plain-pied de 65 m² bénéficiant d'un emplacement privilégié dans Voivres-lès-le-Mans (72210).
Son intérieur inclut deux chambres, une cuisine et une salle de bains. Cette maison est neuve.
Le terrain du bien s'étend sur 331 m².
La maison est située dans un secteur prisé. Il y a l'École Primaire Publique les Vallées à moins de 10 minutes à pied. Niveau transports, on trouve la gare Voivres-lès-le-Mans juste à côté. L'autoroute A11 est accessible à 3 km. Il y a un tennis et une bibliothèque à quelques minutes du logement.
Elle est proposée à l'achat pour 169 000 €.
N'hésitez pas à prendre contact avec Luc LIVET pour toute question sur la propriété ou sur les démarches à suivre. Donnez vie à vos projets immobiliers avec Maine Construction Le Mans.

Mentions légales

Terrain proposé par un partenaire foncier selon disponibilités et autorisation de publicité au prix de 33 900 €. Hors droit d'enregistrement et frais de notaire. Terrain + Maison proposés au prix de 169 000 € (Hors branchements et raccordements, papiers peints, peintures, revêtement de sol dans les chambres. Tarif modifiable sans préavis). Etiquette énergie : A. Différents modèles disponibles pour ce terrain. Assurances et garanties du constructeur (RC professionnelle, décennale, dommage ouvrage, garantie de remboursement de l'acompte, livraison à prix et délai convenu) : https://www.maine-construction.fr/mentions-legales/. HEXAOM Services est enregistré auprès de l'ORIAS en tant que Courtier en financement, Niveau 1, sous le numéro 14001345.

Contactez l'agence de Le Mans

02 43 21 93 33

    * Champs obligatoires

    Vos informations sont traitées par HEXAOM et transmises à un conseiller commercial qui vous contactera afin de répondre à votre demande. Les plans et images présentés sur notre site sont la propriété d’HEXAOM et ne peuvent pas être reproduits sans son accord. Pour retrouver notre politique de protection des données personnelles et exercer vos droits conformément à la « loi informatique et liberté » cliquez-ici.