Maison neuve à
Villaines-la-Gonais (72400) Référence : LL2453281_2

Prix du projet : Maison avec Terrain

prix 249 000 €

  • 6 pièces
  • 4 chambres
  • Surface maison 108 m2

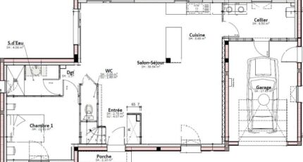
Maison T6 (108 m²) à vendre à Villaines-la-Gonais
MAISON 6 PIÈCES NEUVE
À vendre : à Villaines-la-Gonais (72400), venez découvrir cette maison de 6 pièces de 108 m² et de 696 m² de terrain.
Il s'agit d'une maison de 2 niveaux. Son intérieur offre quatre chambres, une cuisine et deux salles de bains. La maison est neuve.
Niveau transports en commun, il y a les gares Sceaux-Boëssé et La Ferté-Bernard à moins de 10 minutes en voiture. On trouve un accès à l'autoroute A11 à 7 km. On trouve un tennis à proximité.
Elle est à vendre pour la somme de 249 000 €.
Contactez Luc LIVET, Maine Construction Le Mans pour toute question sur la maison ou sur les modalités de vente.

Mentions légales

Terrain proposé par un partenaire foncier selon disponibilités et autorisation de publicité au prix de 30 700 €. Hors droit d'enregistrement et frais de notaire. Terrain + Maison proposés au prix de 249 000 € (Hors branchements et raccordements, papiers peints, peintures, revêtement de sol dans les chambres. Tarif modifiable sans préavis). Etiquette énergie : A. Différents modèles disponibles pour ce terrain. Assurances et garanties du constructeur (RC professionnelle, décennale, dommage ouvrage, garantie de remboursement de l'acompte, livraison à prix et délai convenu) : https://www.maine-construction.fr/mentions-legales/. HEXAOM Services est enregistré auprès de l'ORIAS en tant que Courtier en financement, Niveau 1, sous le numéro 14001345.

Contactez l'agence de Le Mans

02 43 21 93 33

    * Champs obligatoires

    Vos informations sont traitées par HEXAOM et transmises à un conseiller commercial qui vous contactera afin de répondre à votre demande. Les plans et images présentés sur notre site sont la propriété d’HEXAOM et ne peuvent pas être reproduits sans son accord. Pour retrouver notre politique de protection des données personnelles et exercer vos droits conformément à la « loi informatique et liberté » cliquez-ici.