Maison neuve à
Vernie (72170) Référence : LL2348392_3

Prix du projet : Maison avec Terrain

prix 249 000 €

  • 5 pièces
  • 3 chambres
  • Surface maison 98 m2

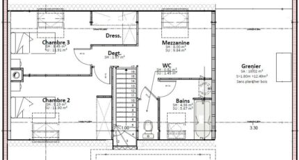
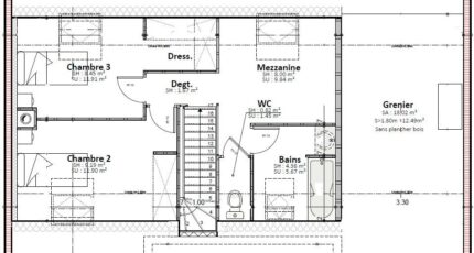
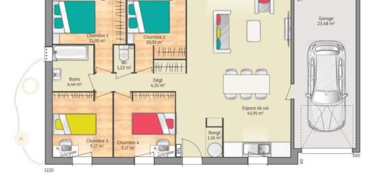
Maison de 5 pièces (98 m²) en vente à Vernie
PROCHE DU MANS - MAISON 5 PIÈCES NEUVE
En vente à deux pas du Mans, nous vous présentons à Vernie (72170), cette maison de 5 pièces de 98 m². Elle offre trois chambres, une cuisine et deux salles de bains.
Le terrain du bien est de 1 954 m².
Cette maison compte 2 niveaux. Elle est neuve.
Il y a une école primaire dans le quartier. Côté transports en commun, on trouve trois gares (Conlie, Crissé et Domfront-en-Champagne) à moins de 10 minutes en voiture. Les autoroutes A28 et A11 sont accessibles à moins de 19 km.
Elle est proposée à l'achat pour 249 000 €.
Prenez contact avec Luc LIVET (07-77-76-37-30) Maine Construction Le Mans pour obtenir de plus amples informations sur la maison, sur les modalités de vente ou sur les démarches à suivre.

Mentions légales

Terrain proposé par un partenaire foncier selon disponibilités et autorisation de publicité au prix de 47 168 €. Hors droit d'enregistrement et frais de notaire. Terrain + Maison proposés au prix de 249 000 € (Hors branchements et raccordements, papiers peints, peintures, revêtement de sol dans les chambres. Tarif modifiable sans préavis). Etiquette énergie : A. Différents modèles disponibles pour ce terrain. Assurances et garanties du constructeur (RC professionnelle, décennale, dommage ouvrage, garantie de remboursement de l'acompte, livraison à prix et délai convenu) : https://www.maine-construction.fr/mentions-legales/. HEXAOM Services est enregistré auprès de l'ORIAS en tant que Courtier en financement, Niveau 1, sous le numéro 14001345.

Contactez l'agence de Le Mans

02 43 21 93 33

    * Champs obligatoires

    Vos informations sont traitées par HEXAOM et transmises à un conseiller commercial qui vous contactera afin de répondre à votre demande. Les plans et images présentés sur notre site sont la propriété d’HEXAOM et ne peuvent pas être reproduits sans son accord. Pour retrouver notre politique de protection des données personnelles et exercer vos droits conformément à la « loi informatique et liberté » cliquez-ici.