Maison neuve à
Vernie (72170) Référence : LL2348392_1

Prix du projet : Maison avec Terrain

prix 215 000 €

  • 5 pièces
  • 4 chambres
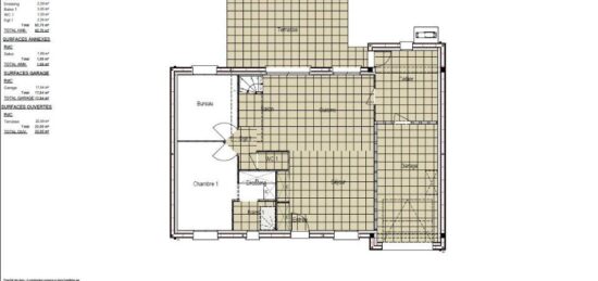
  • Surface maison 92 m2

Vernie : maison F5 (92 m²) à vendre
PROCHE DU MANS - MAISON 5 PIÈCES NEUVE
À vendre : localisée à 26 km du Mans, notre agence Maine Construction Le Mans est ravie de vous proposer cette maison de 5 pièces de plain-pied de 92 m² et de 1 954 m² de terrain à Vernie (72170).
Elle dispose de quatre chambres, d'une cuisine et d'une salle de bains. Cette maison est neuve.
Il y a une école primaire dans le quartier. Côté transports, on trouve trois gares (Conlie, Crissé et Domfront-en-Champagne) à moins de 10 minutes en voiture. Les autoroutes A28 et A11 sont accessibles à moins de 19 km.
Elle est proposée à l'achat pour 215 000 €.
Contactez notre constructeur (LIVET Luc : 07-77-76-37-30) pour toute question sur la maison ou sur les modalités de vente. Donnez vie à vos projets immobiliers avec Maine Construction Le Mans.

Mentions légales

Terrain proposé par un partenaire foncier selon disponibilités et autorisation de publicité au prix de 47 168 €. Hors droit d'enregistrement et frais de notaire. Terrain + Maison proposés au prix de 215 000 € (Hors branchements et raccordements, papiers peints, peintures, revêtement de sol dans les chambres. Tarif modifiable sans préavis). Etiquette énergie : A. Différents modèles disponibles pour ce terrain. Assurances et garanties du constructeur (RC professionnelle, décennale, dommage ouvrage, garantie de remboursement de l'acompte, livraison à prix et délai convenu) : https://www.maine-construction.fr/mentions-legales/. HEXAOM Services est enregistré auprès de l'ORIAS en tant que Courtier en financement, Niveau 1, sous le numéro 14001345.

Contactez l'agence de Le Mans

02 43 21 93 33

    * Champs obligatoires

    Vos informations sont traitées par HEXAOM et transmises à un conseiller commercial qui vous contactera afin de répondre à votre demande. Les plans et images présentés sur notre site sont la propriété d’HEXAOM et ne peuvent pas être reproduits sans son accord. Pour retrouver notre politique de protection des données personnelles et exercer vos droits conformément à la « loi informatique et liberté » cliquez-ici.