Maison neuve à
Trangé (72650) Référence : FH2313619_8

Prix du projet : Maison avec Terrain

prix 229 000 €

  • 3 pièces
  • 2 chambres
  • Surface maison 83 m2

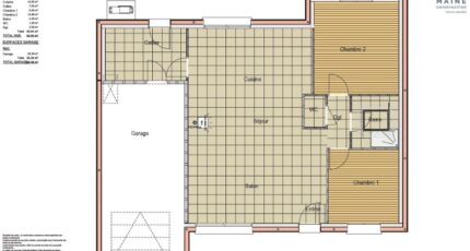
VENTE : maison de 3 pièces (83 m²) à Trangé
QUARTIER RECHERCHÉ - MAISON 3 PIÈCES NEUVE
En vente : à 8 km du Mans, découvrez cette maison de 3 pièces de plain-pied de 83 m² située dans un secteur convoité de Trangé (72650).
Elle comporte deux chambres, une cuisine et une salle de bains. Cette maison est neuve.
Le terrain de la propriété est de 300 m².
Cette maison se situe dans un quartier recherché. L'École Primaire Publique les Happelières se trouve à moins de 10 minutes à pied. Côté transports en commun, il y a deux gares (Le Mans et Neuville-sur-Sarthe) à moins de 10 minutes en voiture. L'autoroute A11 est accessible à 2 km. On trouve une bibliothèque, deux commerces, une boulangerie et une épicerie à quelques minutes à peine.
Son prix de vente est de 229 000 €.
N'hésitez pas à prendre contact avec François HOUDAYER (tél : 06-23-38-26-90) pour obtenir de plus amples informations sur la propriété, sur les démarches à suivre ou sur les modalités de vente.

Mentions légales

Terrain proposé par un partenaire foncier selon disponibilités et autorisation de publicité au prix de 42 000 €. Hors droit d'enregistrement et frais de notaire. Maison proposée, avec un contrat de construction de maison individuelle, dans le cadre de la loi du 19/12/1990, au prix de 187 000 € (Hors branchements et raccordements, papiers peints, peintures, revêtement de sol dans les chambres, qui sont chiffrés dans les travaux qui restent à charge du client. Tarif modifiable sans préavis). Étiquette énergie : A. Différents modèles disponibles pour ce terrain. Assurances et garanties du constructeur comprises (RC professionnelle, décennale, dommage ouvrage).

Contactez l'agence de Le Mans

02 43 21 93 33

    * Champs obligatoires

    Vos informations sont traitées par HEXAOM et transmises à un conseiller commercial qui vous contactera afin de répondre à votre demande. Les plans et images présentés sur notre site sont la propriété d’HEXAOM et ne peuvent pas être reproduits sans son accord. Pour retrouver notre politique de protection des données personnelles et exercer vos droits conformément à la « loi informatique et liberté » cliquez-ici.