Maison neuve à
Trangé (72650) Référence : FH2313619_7

Prix du projet : Maison avec Terrain

prix 349 000 €

  • 4 pièces
  • 4 chambres
  • Surface maison 143 m2

VENTE d'une maison T4 (143 m²) à Trangé
QUARTIER RECHERCHÉ - MAISON 4 PIÈCES NEUVE
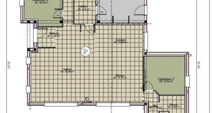
En vente : localisée à quelques kilomètres du Mans, nous sommes heureux de vous proposer, nichée dans un quartier attractif de Trangé (72650), cette maison de 4 pièces de plain-pied de 143 m². Conçue de plain-pied, elle dispose de quatre chambres, d'une cuisine et de deux salles de bains.
Le terrain du bien s'étend sur 300 m².
Cette maison est neuve.
La maison se trouve dans un secteur recherché. L'École Primaire Publique les Happelières est implantée à moins de 10 minutes à pied. Niveau transports, on trouve les gares Le Mans et Neuville-sur-Sarthe à moins de 10 minutes en voiture. L'autoroute A11 est accessible à 2 km. Il y a une bibliothèque, deux commerces, une boulangerie et une épicerie à proximité du logement.
Son prix de vente est de 349 000 €.
Contactez notre agence (HOUDAYER François : 06-23-38-26-90) pour tout renseignement sur la propriété ou sur les démarches à suivre. Faites de vos projets immobiliers une réalité avec Maine Construction Le Mans.

Mentions légales

Terrain proposé par un partenaire foncier selon disponibilités et autorisation de publicité au prix de 42 000 €. Hors droit d'enregistrement et frais de notaire. Maison proposée, avec un contrat de construction de maison individuelle, dans le cadre de la loi du 19/12/1990, au prix de 307 000 € (Hors branchements et raccordements, papiers peints, peintures, revêtement de sol dans les chambres, qui sont chiffrés dans les travaux qui restent à charge du client. Tarif modifiable sans préavis). Étiquette énergie : A. Différents modèles disponibles pour ce terrain. Assurances et garanties du constructeur comprises (RC professionnelle, décennale, dommage ouvrage).

Contactez l'agence de Le Mans

02 43 21 93 33

    * Champs obligatoires

    Vos informations sont traitées par HEXAOM et transmises à un conseiller commercial qui vous contactera afin de répondre à votre demande. Les plans et images présentés sur notre site sont la propriété d’HEXAOM et ne peuvent pas être reproduits sans son accord. Pour retrouver notre politique de protection des données personnelles et exercer vos droits conformément à la « loi informatique et liberté » cliquez-ici.