Maison neuve à
Trangé (72650) Référence : FH2313619_6

Prix du projet : Maison avec Terrain

prix 296 000 €

  • 5 pièces
  • 4 chambres
  • Surface maison 118 m2

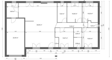
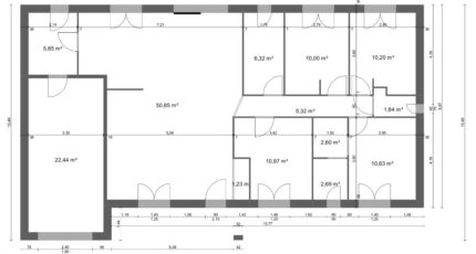
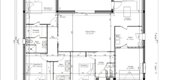
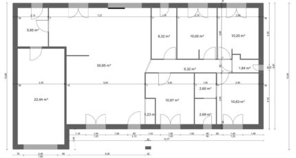
VENTE d'une maison de 5 pièces (118 m²) à Trangé
QUARTIER RECHERCHÉ - MAISON 5 PIÈCES NEUVE
À quelques kilomètres du Mans, votre agence Maine Construction Le Mans est heureuse de vous proposer cette maison de 5 pièces de plain-pied de 118 m² située dans un quartier prisé de Trangé (72650). Conçue de plain-pied, elle comporte quatre chambres, une cuisine et une salle de bains.
Le terrain de cette maison s'étend sur 300 m².
La maison est neuve.
La maison est située dans un secteur attractif. L'École Primaire Publique les Happelières se trouve à moins de 10 minutes à pied. Côté transports en commun, il y a les gares Le Mans et Neuville-sur-Sarthe à moins de 10 minutes en voiture. L'autoroute A11 est accessible à 2 km. On trouve une bibliothèque, deux commerces, une boulangerie et une épicerie à proximité de la maison.
Elle est à vendre pour la somme de 296 000 €.
Contactez François HOUDAYER (06-23-38-26-90) pour tout renseignement sur la maison, sur les démarches à suivre ou sur les modalités de vente. Concrétisez vos projets immobiliers avec Maine Construction Le Mans.

Mentions légales

Terrain proposé par un partenaire foncier selon disponibilités et autorisation de publicité au prix de 42 000 €. Hors droit d'enregistrement et frais de notaire. Maison proposée, avec un contrat de construction de maison individuelle, dans le cadre de la loi du 19/12/1990, au prix de 254 000 € (Hors branchements et raccordements, papiers peints, peintures, revêtement de sol dans les chambres, qui sont chiffrés dans les travaux qui restent à charge du client. Tarif modifiable sans préavis). Étiquette énergie : A. Différents modèles disponibles pour ce terrain. Assurances et garanties du constructeur comprises (RC professionnelle, décennale, dommage ouvrage).

Contactez l'agence de Le Mans

02 43 21 93 33

    * Champs obligatoires

    Vos informations sont traitées par HEXAOM et transmises à un conseiller commercial qui vous contactera afin de répondre à votre demande. Les plans et images présentés sur notre site sont la propriété d’HEXAOM et ne peuvent pas être reproduits sans son accord. Pour retrouver notre politique de protection des données personnelles et exercer vos droits conformément à la « loi informatique et liberté » cliquez-ici.