Maison neuve à
Trangé (72650) Référence : FH2313619_2

Prix du projet : Maison avec Terrain

prix 252 000 €

  • 5 pièces
  • 4 chambres
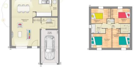
  • Surface maison 93 m2

Trangé : maison T5 (93 m²) à vendre
QUARTIER RECHERCHÉ - MAISON 5 PIÈCES NEUVE
En vente : située à 8 km du Mans, située dans un secteur attractif de Trangé (72650), Maine Construction Le Mans vous propose cette maison de 5 pièces de 93 m². Elle comporte quatre chambres, une cuisine et une salle de bains.
Le terrain du bien s'étend sur 300 m².
C'est une maison de 2 niveaux. Elle est neuve.
La maison se trouve dans un quartier prisé. L'École Primaire Publique les Happelières est implantée à moins de 10 minutes à pied. Côté transports, il y a les gares Le Mans et Neuville-sur-Sarthe à moins de 10 minutes en voiture. L'autoroute A11 est accessible à 2 km. On trouve une bibliothèque, deux commerces, une boulangerie et une épicerie à quelques minutes.
Elle est proposée à l'achat pour 252 000 €.
N'hésitez pas à prendre contact avec François HOUDAYER (tél : 06-23-38-26-90) pour toute information sur la maison et sur les modalités de vente.

Mentions légales

Terrain proposé par un partenaire foncier selon disponibilités et autorisation de publicité au prix de 42 000 €. Hors droit d'enregistrement et frais de notaire. Maison proposée, avec un contrat de construction de maison individuelle, dans le cadre de la loi du 19/12/1990, au prix de 210 000 € (Hors branchements et raccordements, papiers peints, peintures, revêtement de sol dans les chambres, qui sont chiffrés dans les travaux qui restent à charge du client. Tarif modifiable sans préavis). Étiquette énergie : A. Différents modèles disponibles pour ce terrain. Assurances et garanties du constructeur comprises (RC professionnelle, décennale, dommage ouvrage).

Contactez l'agence de Le Mans

02 43 21 93 33

    * Champs obligatoires

    Vos informations sont traitées par HEXAOM et transmises à un conseiller commercial qui vous contactera afin de répondre à votre demande. Les plans et images présentés sur notre site sont la propriété d’HEXAOM et ne peuvent pas être reproduits sans son accord. Pour retrouver notre politique de protection des données personnelles et exercer vos droits conformément à la « loi informatique et liberté » cliquez-ici.