Maison neuve à
Teloché
(72220)
Référence :
LL2451407_2
Prix du projet : Maison avec Terrain
prix 189 900 €
- 4 pièces
- 3 chambres
- Surface maison 76 m2
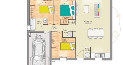
VENTE d'une maison de 4 pièces (76 m²) à Teloché
IDÉALEMENT SITUÉE - MAISON 4 PIÈCES NEUVE
À vendre à quelques kilomètres du Mans, idéalement située dans Teloché (72220), notre agence Maine Construction Le Mans est ravie de vous présenter cette maison de 4 pièces de plain-pied de 76 m² et de 371 m² de terrain. Elle dispose de trois chambres, d'une cuisine et d'une salle de bains.
La maison est neuve.
Cette maison est située dans un secteur recherché. L'École Élémentaire Publique Au Fil du Rhonne, l'École Maternelle Publique Croque Lune, l'École Primaire Privée Sainte Thérèse-Saint Joseph et le Collège Privé Saint Jean Baptiste de la Salle sont implantés à moins de 10 minutes à pied. Niveau transports en commun, il y a les gares Laigné-Saint-Gervais, Écommoy et Arnage à moins de 10 minutes en voiture. On trouve un tennis, une bibliothèque, trois commerces, une boucherie-charcuterie et une supérette à proximité du logement.
Elle est proposée à l'achat pour 189 900 €.
Prenez contact avec notre agence (LIVET Luc ) pour toute question sur la maison, sur les modalités de vente ou sur les démarches à suivre.
Mentions légales
Terrain proposé par un partenaire foncier selon disponibilités et autorisation de publicité au prix de 44 000 €. Hors droit d'enregistrement et frais de notaire. Terrain + Maison proposés au prix de 189 900 € (Hors branchements et raccordements, papiers peints, peintures, revêtement de sol dans les chambres. Tarif modifiable sans préavis). Etiquette énergie : A. Différents modèles disponibles pour ce terrain. Assurances et garanties du constructeur (RC professionnelle, décennale, dommage ouvrage, garantie de remboursement de l'acompte, livraison à prix et délai convenu) : https://www.maine-construction.fr/mentions-legales/. HEXAOM Services est enregistré auprès de l'ORIAS en tant que Courtier en financement, Niveau 1, sous le numéro 14001345.Agence Maine Construction de Le Mans (72000)
- Téléphone :
- 02 43 21 93 33
- Adressse :
-
Rond-point de César Antarès
72000 Le Mans, France