Maison neuve à
Teloché (72220) Référence : LL2346213_4

Prix du projet : Maison avec Terrain

prix 279 000 €

  • 6 pièces
  • 4 chambres
  • Surface maison 108 m2

Teloché : maison F6 (108 m²) à vendre
EMPLACEMENT PRIVILÉGIÉ - MAISON 6 PIÈCES NEUVE
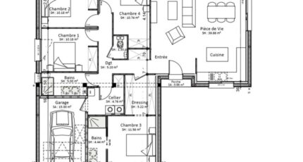
En vente : à deux pas du Mans, ayez le coup de coeur pour, bénéficiant d'un emplacement d'exception dans Teloché (72220), cette maison de 6 pièces de plain-pied de 108 m² et de 481 m² de terrain. Son intérieur offre quatre chambres, une cuisine et deux salles de bains.
Cette maison est neuve.
La maison se trouve dans un secteur attractif. L'École Élémentaire Publique Au Fil du Rhonne, l'École Maternelle Publique Croque Lune, l'École Primaire Privée Sainte Thérèse-Saint Joseph et le Collège Privé Saint Jean Baptiste de la Salle sont implantés à moins de 10 minutes à pied. Niveau transports, il y a les gares Laigné-Saint-Gervais, Écommoy et Arnage à moins de 10 minutes en voiture. On trouve un accès à l'autoroute A28 à 8 km. On trouve un tennis, une bibliothèque, deux boulangeries, deux commerces, une supérette et une boucherie-charcuterie dans les environs.
Elle est à vendre pour la somme de 279 000 €.
Contactez Luc LIVET (tél : 07-77-76-37-30) pour toute question sur la maison ou sur les modalités de vente. Maine Construction Le Mans est là pour vous accompagner dans toutes vos démarches.

Mentions légales

Terrain proposé par un partenaire foncier selon disponibilités et autorisation de publicité au prix de 53 000 €. Hors droit d'enregistrement et frais de notaire. Maison proposée, avec un contrat de construction de maison individuelle, dans le cadre de la loi du 19/12/1990, au prix de 226 000 € (Hors branchements et raccordements, papiers peints, peintures, revêtement de sol dans les chambres, qui sont chiffrés dans les travaux qui restent à charge du client. Tarif modifiable sans préavis). Étiquette énergie : A. Différents modèles disponibles pour ce terrain. Assurances et garanties du constructeur comprises (RC professionnelle, décennale, dommage ouvrage).

Contactez l'agence de Le Mans

02 43 21 93 33

    * Champs obligatoires

    Vos informations sont traitées par HEXAOM et transmises à un conseiller commercial qui vous contactera afin de répondre à votre demande. Les plans et images présentés sur notre site sont la propriété d’HEXAOM et ne peuvent pas être reproduits sans son accord. Pour retrouver notre politique de protection des données personnelles et exercer vos droits conformément à la « loi informatique et liberté » cliquez-ici.