Maison neuve à
Teloché (72220) Référence : LL2346213_3

Prix du projet : Maison avec Terrain

prix 239 000 €

  • 4 pièces
  • 3 chambres
  • Surface maison 90 m2

Teloché : maison de 4 pièces (90 m²) en vente
EMPLACEMENT PRIVILÉGIÉ - MAISON 4 PIÈCES NEUVE
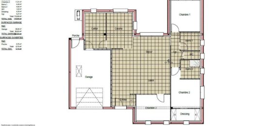
En vente : à 12 km du Mans, bénéficiant d'un emplacement d'exception dans Teloché (72220), Maine Construction Le Mans vous présente cette maison de 4 pièces de plain-pied de 90 m² et de 481 m² de terrain. Son intérieur comporte trois chambres, une cuisine et une salle de bains.
La maison est neuve.
Cette maison est située dans un quartier prisé. Il y a l'École Élémentaire Publique Au Fil du Rhonne, l'École Maternelle Publique Croque Lune, l'École Primaire Privée Sainte Thérèse-Saint Joseph et le Collège Privé Saint Jean Baptiste de la Salle à moins de 10 minutes à pied. Côté transports en commun, on trouve trois gares (Laigné-Saint-Gervais, Écommoy et Arnage) à moins de 10 minutes en voiture. On trouve un accès à l'autoroute A28 à 8 km. Il y a un tennis, une bibliothèque, deux boulangeries, deux commerces, une supérette et une boucherie-charcuterie à quelques minutes.
Elle est proposée à l'achat pour 239 000 €.
Contactez Luc LIVET (tél : 07-77-76-37-30)Maine Construction Le Mans. pour plus d'informations sur la maison.

Mentions légales

Terrain proposé par un partenaire foncier selon disponibilités et autorisation de publicité au prix de 53 000 €. Hors droit d'enregistrement et frais de notaire. Terrain + Maison proposés au prix de 239 000 € (Hors branchements et raccordements, papiers peints, peintures, revêtement de sol dans les chambres. Tarif modifiable sans préavis). Etiquette énergie : A. Différents modèles disponibles pour ce terrain. Assurances et garanties du constructeur (RC professionnelle, décennale, dommage ouvrage, garantie de remboursement de l'acompte, livraison à prix et délai convenu) : https://www.maine-construction.fr/mentions-legales/. HEXAOM Services est enregistré auprès de l'ORIAS en tant que Courtier en financement, Niveau 1, sous le numéro 14001345.

Contactez l'agence de Le Mans

02 43 21 93 33

    * Champs obligatoires

    Vos informations sont traitées par HEXAOM et transmises à un conseiller commercial qui vous contactera afin de répondre à votre demande. Les plans et images présentés sur notre site sont la propriété d’HEXAOM et ne peuvent pas être reproduits sans son accord. Pour retrouver notre politique de protection des données personnelles et exercer vos droits conformément à la « loi informatique et liberté » cliquez-ici.