Maison neuve à
Teloché (72220) Référence : LL2346213_1

Prix du projet : Maison avec Terrain

prix 205 000 €

  • 4 pièces
  • 3 chambres
  • Surface maison 76 m2

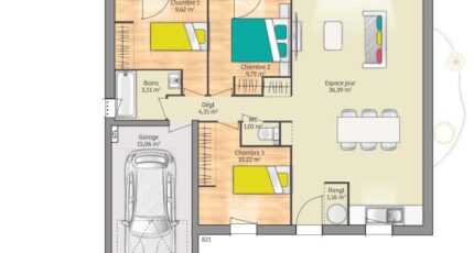
VENTE : maison de 4 pièces (76 m²) à Teloché
EMPLACEMENT PRIVILÉGIÉ - MAISON 4 PIÈCES NEUVE
En vente : située à deux pas du Mans, nous sommes heureux de vous présenter, bénéficiant d'un emplacement d'exception dans Teloché (72220), cette maison de 4 pièces de plain-pied de 76 m² et de 481 m² de terrain. Conçue de plain-pied, elle compte trois chambres, une cuisine et une salle de bains.
La maison est neuve.
Cette maison est située dans un quartier convoité. On trouve l'École Élémentaire Publique Au Fil du Rhonne, l'École Maternelle Publique Croque Lune, l'École Primaire Privée Sainte Thérèse-Saint Joseph et le Collège Privé Saint Jean Baptiste de la Salle à moins de 10 minutes à pied. Niveau transports en commun, il y a trois gares (Laigné-Saint-Gervais, Écommoy et Arnage) à moins de 10 minutes en voiture. L'autoroute A28 est accessible à 8 km. On trouve un tennis, une bibliothèque, deux boulangeries, deux commerces, une supérette et une boucherie-charcuterie à quelques minutes à peine.
Elle est proposée à l'achat pour 205 000 €.
Prenez contact avec Luc LIVET (tél : 07-77-76-37-30) pour plus d'informations sur la maison. Maine Construction Le Mans est là pour vous accompagner dans toutes vos démarches.

Mentions légales

Terrain proposé par un partenaire foncier selon disponibilités et autorisation de publicité au prix de 53 000 €. Hors droit d'enregistrement et frais de notaire. Terrain + Maison proposés au prix de 205 000 € (Hors branchements et raccordements, papiers peints, peintures, revêtement de sol dans les chambres. Tarif modifiable sans préavis). Etiquette énergie : A. Différents modèles disponibles pour ce terrain. Assurances et garanties du constructeur (RC professionnelle, décennale, dommage ouvrage, garantie de remboursement de l'acompte, livraison à prix et délai convenu) : https://www.maine-construction.fr/mentions-legales/. HEXAOM Services est enregistré auprès de l'ORIAS en tant que Courtier en financement, Niveau 1, sous le numéro 14001345.

Contactez l'agence de Le Mans

02 43 21 93 33

    * Champs obligatoires

    Vos informations sont traitées par HEXAOM et transmises à un conseiller commercial qui vous contactera afin de répondre à votre demande. Les plans et images présentés sur notre site sont la propriété d’HEXAOM et ne peuvent pas être reproduits sans son accord. Pour retrouver notre politique de protection des données personnelles et exercer vos droits conformément à la « loi informatique et liberté » cliquez-ici.