Maison neuve à
Spay (72700) Référence : LL2349335_5

Prix du projet : Maison avec Terrain

prix 260 000 €

  • 4 pièces
  • 2 chambres
  • Surface maison 94 m2

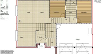
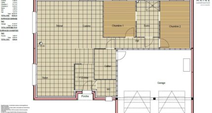
Spay : maison F4 (94 m²) à vendre
EMPLACEMENT PRIVILÉGIÉ - MAISON 4 PIÈCES NEUVE
En vente à 8 km du Mans, Maine Construction Le Mans vous présente, bénéficiant d'un emplacement d'exception dans Spay (72700), cette maison de 4 pièces de plain-pied de 94 m² et de 381 m² de terrain. Elle propose deux chambres, une cuisine et une salle de bains.
Cette maison est neuve.
Cette maison est située dans un secteur convoité. L'École Élémentaire Publique Albert Gregoire et l'École Maternelle Publique les Petits Pas se trouvent à moins de 10 minutes à pied. Niveau transports en commun, il y a quatre gares à moins de 10 minutes en voiture. L'autoroute A11 est accessible à 8 km. On trouve une bibliothèque, un tennis, une boulangerie, un commerce, une supérette et une boucherie-charcuterie à quelques minutes à peine.
Elle est à vendre pour la somme de 260 000 €.
Prenez contact avec Luc LIVET (07-77-76-37-30) pour tout renseignement sur la maison, sur les démarches à suivre ou sur les modalités de vente. Donnez vie à vos projets immobiliers avec Maine Construction Le Mans.

Mentions légales

Terrain proposé par un partenaire foncier selon disponibilités et autorisation de publicité au prix de 62 500 €. Hors droit d'enregistrement et frais de notaire. Terrain + Maison proposés au prix de 260 000 € (Hors branchements et raccordements, papiers peints, peintures, revêtement de sol dans les chambres. Tarif modifiable sans préavis). Etiquette énergie : A. Différents modèles disponibles pour ce terrain. Assurances et garanties du constructeur (RC professionnelle, décennale, dommage ouvrage, garantie de remboursement de l'acompte, livraison à prix et délai convenu) : https://www.maine-construction.fr/mentions-legales/. HEXAOM Services est enregistré auprès de l'ORIAS en tant que Courtier en financement, Niveau 1, sous le numéro 14001345.

Contactez l'agence de Le Mans

02 43 21 93 33

    * Champs obligatoires

    Vos informations sont traitées par HEXAOM et transmises à un conseiller commercial qui vous contactera afin de répondre à votre demande. Les plans et images présentés sur notre site sont la propriété d’HEXAOM et ne peuvent pas être reproduits sans son accord. Pour retrouver notre politique de protection des données personnelles et exercer vos droits conformément à la « loi informatique et liberté » cliquez-ici.