Maison neuve à
Spay (72700) Référence : LL2349335_3

Prix du projet : Maison avec Terrain

prix 273 000 €

  • 6 pièces
  • 4 chambres
  • Surface maison 105 m2

Spay : maison de 6 pièces (105 m²) en vente
EMPLACEMENT PRIVILÉGIÉ - MAISON 6 PIÈCES NEUVE
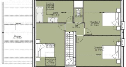
À vendre à 8 km du Mans, Maine Construction Le Mans vous présente cette maison de 6 pièces de 105 m² et de 381 m² de terrain bénéficiant d'un emplacement d'exception dans Spay (72700). Son intérieur inclut quatre chambres, une cuisine et deux salles de bains.
C'est une maison de 2 niveaux. Elle est neuve.
La maison se trouve dans un secteur recherché. Il y a l'École Élémentaire Publique Albert Gregoire et l'École Maternelle Publique les Petits Pas à moins de 10 minutes à pied. Niveau transports en commun, on trouve quatre gares à moins de 10 minutes en voiture. L'autoroute A11 est accessible à 8 km. Il y a une bibliothèque, un tennis, une boulangerie, un commerce, une supérette et une boucherie-charcuterie à quelques minutes à peine.
Elle est à vendre pour la somme de 273 000 €.
Contactez notre agence Maine Construction Le Mans (LIVET Luc : 07-77-76-37-30) pour obtenir de plus amples renseignements sur la maison, sur les modalités de vente ou sur les démarches à suivre.

Mentions légales

Terrain proposé par un partenaire foncier selon disponibilités et autorisation de publicité au prix de 62 500 €. Hors droit d'enregistrement et frais de notaire. Terrain + Maison proposés au prix de 273 000 € (Hors branchements et raccordements, papiers peints, peintures, revêtement de sol dans les chambres. Tarif modifiable sans préavis). Etiquette énergie : A. Différents modèles disponibles pour ce terrain. Assurances et garanties du constructeur (RC professionnelle, décennale, dommage ouvrage, garantie de remboursement de l'acompte, livraison à prix et délai convenu) : https://www.maine-construction.fr/mentions-legales/. HEXAOM Services est enregistré auprès de l'ORIAS en tant que Courtier en financement, Niveau 1, sous le numéro 14001345.

Contactez l'agence de Le Mans

02 43 21 93 33

    * Champs obligatoires

    Vos informations sont traitées par HEXAOM et transmises à un conseiller commercial qui vous contactera afin de répondre à votre demande. Les plans et images présentés sur notre site sont la propriété d’HEXAOM et ne peuvent pas être reproduits sans son accord. Pour retrouver notre politique de protection des données personnelles et exercer vos droits conformément à la « loi informatique et liberté » cliquez-ici.