Maison neuve à
Spay (72700) Référence : LL2349335_1

Prix du projet : Maison avec Terrain

prix 199 000 €

  • 3 pièces
  • 2 chambres
  • Surface maison 65 m2

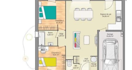
Spay : maison de 3 pièces (65 m²) en vente
EMPLACEMENT PRIVILÉGIÉ - MAISON 3 PIÈCES NEUVE
En vente : située à deux pas du Mans, nous vous présentons cette maison de 3 pièces de plain-pied de 65 m² et de 381 m² de terrain, bénéficiant d'un emplacement privilégié dans Spay (72700).
Conçue de plain-pied, elle comporte deux chambres, une cuisine et une salle de bains. Cette maison est neuve.
Cette maison se trouve dans un quartier attractif. Il y a l'École Élémentaire Publique Albert Gregoire et l'École Maternelle Publique les Petits Pas à moins de 10 minutes à pied. Côté transports en commun, on trouve quatre gares à moins de 10 minutes en voiture. On trouve un accès à l'autoroute A11 à 8 km. Il y a une bibliothèque, un tennis, une boulangerie, un commerce, une supérette et une boucherie-charcuterie dans les environs.
Elle est à vendre pour la somme de 199 000 €.
Contactez Luc LIVET (07-77-76-37-30) pour toute question sur la maison ou sur les démarches à suivre. Maine Construction Le Mans vous accompagne dans tous vos projets immobiliers et à toutes les étapes de l'achat.

Mentions légales

Terrain proposé par un partenaire foncier selon disponibilités et autorisation de publicité au prix de 62 500 €. Hors droit d'enregistrement et frais de notaire. Terrain + Maison proposés au prix de 199 000 € (Hors branchements et raccordements, papiers peints, peintures, revêtement de sol dans les chambres. Tarif modifiable sans préavis). Etiquette énergie : A. Différents modèles disponibles pour ce terrain. Assurances et garanties du constructeur (RC professionnelle, décennale, dommage ouvrage, garantie de remboursement de l'acompte, livraison à prix et délai convenu) : https://www.maine-construction.fr/mentions-legales/. HEXAOM Services est enregistré auprès de l'ORIAS en tant que Courtier en financement, Niveau 1, sous le numéro 14001345.

Contactez l'agence de Le Mans

02 43 21 93 33

    * Champs obligatoires

    Vos informations sont traitées par HEXAOM et transmises à un conseiller commercial qui vous contactera afin de répondre à votre demande. Les plans et images présentés sur notre site sont la propriété d’HEXAOM et ne peuvent pas être reproduits sans son accord. Pour retrouver notre politique de protection des données personnelles et exercer vos droits conformément à la « loi informatique et liberté » cliquez-ici.