Maison neuve à
Soulitré (72370) Référence : LL2423408_2

Prix du projet : Maison avec Terrain

prix 179 000 €

  • 3 pièces
  • 2 chambres
  • Surface maison 65 m2

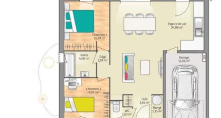
Soulitré : maison F3 (65 m²) en vente
EMPLACEMENT PRIVILÉGIÉ - MAISON 3 PIÈCES NEUVE
À vendre à 19 km du Mans, bénéficiant d'un emplacement d'exception dans Soulitré (72370), notre agence Maine Construction Le Mans est ravie de vous présenter cette maison de 3 pièces de plain-pied de 65 m². Elle offre deux chambres, une cuisine et une salle de bains.
Le terrain du bien s'étend sur 561 m².
La maison est neuve.
Cette maison se trouve dans un quartier convoité. Il y a l'École Maternelle Publique à moins de 10 minutes à pied. Niveau transports en commun, on trouve quatre gares à moins de 10 minutes en voiture. Les autoroutes A28 et A11 sont accessibles à moins de 13 km. Il y a un commerce dans les environs.
Elle est proposée à l'achat pour 179 000 €.
Contactez Luc LIVET (07-77-76-37-30) pour toute question sur la propriété ou sur les démarches à suivre. Concrétisez vos projets immobiliers avec Maine Construction Le Mans.

Mentions légales

Terrain proposé par un partenaire foncier selon disponibilités et autorisation de publicité au prix de 40 000 €. Hors droit d'enregistrement et frais de notaire. Terrain + Maison proposés au prix de 179 000 € (Hors branchements et raccordements, papiers peints, peintures, revêtement de sol dans les chambres. Tarif modifiable sans préavis). Etiquette énergie : A. Différents modèles disponibles pour ce terrain. Assurances et garanties du constructeur (RC professionnelle, décennale, dommage ouvrage, garantie de remboursement de l'acompte, livraison à prix et délai convenu) : https://www.maine-construction.fr/mentions-legales/. HEXAOM Services est enregistré auprès de l'ORIAS en tant que Courtier en financement, Niveau 1, sous le numéro 14001345.

Contactez l'agence de Le Mans

02 43 21 93 33

    * Champs obligatoires

    Vos informations sont traitées par HEXAOM et transmises à un conseiller commercial qui vous contactera afin de répondre à votre demande. Les plans et images présentés sur notre site sont la propriété d’HEXAOM et ne peuvent pas être reproduits sans son accord. Pour retrouver notre politique de protection des données personnelles et exercer vos droits conformément à la « loi informatique et liberté » cliquez-ici.