Maison neuve à
Saint-Saturnin (72650) Référence : LL2347878_5

Prix du projet : Maison avec Terrain

prix 259 000 €

  • 4 pièces
  • 3 chambres
  • Surface maison 87 m2

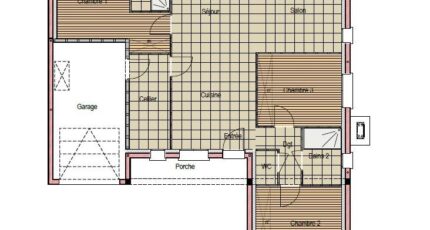
Maison F4 (87 m²) à vendre à Saint-Saturnin
EMPLACEMENT PRIVILÉGIÉ - MAISON 4 PIÈCES NEUVE
À vendre : à deux pas du Mans, notre agence Maine Construction Le Mans est ravie de vous présenter cette maison de 4 pièces de plain-pied de 87 m², bénéficiant d'un emplacement d'exception dans Saint-Saturnin (72650).
Son intérieur comporte trois chambres, une cuisine et deux salles de bains. Cette maison est neuve.
Le terrain de la propriété est de 361 m².
Cette maison se trouve dans un secteur prisé. Il y a l'École Élémentaire Publique les 7 Plûmes, l'École Maternelle Publique le Petit Monde et le Lycée Agricole Privé les Horizons-Site de Saint Saturnin à moins de 10 minutes à pied et une structure d'accueil pour les tout-petits. Niveau transports en commun, on trouve trois gares (Neuville-sur-Sarthe, La Guierche et Le Mans) à moins de 10 minutes en voiture. L'autoroute A11 est accessible à 1 km. Il y a un bassin de natation, un tennis, une boulangerie, un commerce et une épicerie dans les environs.
Elle est proposée à l'achat pour 259 000 €.
Contactez Luc LIVET (07-77-76-37-30) Maine Construction Le Mans pour toute information sur la maison. Concrétisez vos projets immobiliers avec Maine Construction Le Mans.

Mentions légales

Terrain proposé par un partenaire foncier selon disponibilités et autorisation de publicité au prix de 70 000 €. Hors droit d'enregistrement et frais de notaire. Terrain + Maison proposés au prix de 259 000 € (Hors branchements et raccordements, papiers peints, peintures, revêtement de sol dans les chambres. Tarif modifiable sans préavis). Etiquette énergie : A. Différents modèles disponibles pour ce terrain. Assurances et garanties du constructeur (RC professionnelle, décennale, dommage ouvrage, garantie de remboursement de l'acompte, livraison à prix et délai convenu) : https://www.maine-construction.fr/mentions-legales/. HEXAOM Services est enregistré auprès de l'ORIAS en tant que Courtier en financement, Niveau 1, sous le numéro 14001345.

Contactez l'agence de Le Mans

02 43 21 93 33

    * Champs obligatoires

    Vos informations sont traitées par HEXAOM et transmises à un conseiller commercial qui vous contactera afin de répondre à votre demande. Les plans et images présentés sur notre site sont la propriété d’HEXAOM et ne peuvent pas être reproduits sans son accord. Pour retrouver notre politique de protection des données personnelles et exercer vos droits conformément à la « loi informatique et liberté » cliquez-ici.