Maison neuve à
Saint-Saturnin (72650) Référence : LL2347680_5

Prix du projet : Maison avec Terrain

prix 249 000 €

  • 4 pièces
  • 3 chambres
  • Surface maison 92 m2

VENTE : maison F4 (92 m²) à Saint-Saturnin
EMPLACEMENT PRIVILÉGIÉ - MAISON 4 PIÈCES NEUVE
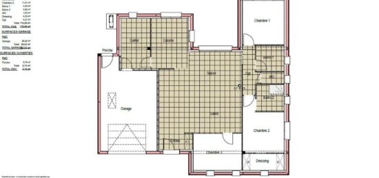
À vendre à 9 km du Mans, notre agence Maine Construction Le Mans est heureuse de vous proposer cette maison de 4 pièces de plain-pied de 92 m² et de 313 m² de terrain bénéficiant d'un emplacement d'exception dans Saint-Saturnin (72650). Conçue de plain-pied, elle inclut trois chambres, une cuisine et une salle de bains.
Cette maison est neuve.
La maison est située dans un secteur prisé. On trouve l'École Élémentaire Publique les 7 Plûmes, l'École Maternelle Publique le Petit Monde et le Lycée Agricole Privé les Horizons-Site de Saint Saturnin à moins de 10 minutes à pied et une crèche. Côté transports, il y a trois gares (Neuville-sur-Sarthe, La Guierche et Le Mans) à moins de 10 minutes en voiture. On trouve un accès à l'autoroute A11 à 1 km. On trouve un bassin de natation, un tennis, une boulangerie, un commerce et une épicerie à proximité du logement.
Elle est proposée à l'achat pour 249 000 €.
Prenez contact avec Luc LIVET (07-77-76-37-30) pour plus de renseignements sur la maison ou sur les démarches à suivre. Maine Construction Le Mans est là pour vous accompagner dans tous vos projets immobiliers.

Mentions légales

Terrain proposé par un partenaire foncier selon disponibilités et autorisation de publicité au prix de 63 000 €. Hors droit d'enregistrement et frais de notaire. Terrain + Maison proposés au prix de 249 000 € (Hors branchements et raccordements, papiers peints, peintures, revêtement de sol dans les chambres. Tarif modifiable sans préavis). Etiquette énergie : A. Différents modèles disponibles pour ce terrain. Assurances et garanties du constructeur (RC professionnelle, décennale, dommage ouvrage, garantie de remboursement de l'acompte, livraison à prix et délai convenu) : https://www.maine-construction.fr/mentions-legales/. HEXAOM Services est enregistré auprès de l'ORIAS en tant que Courtier en financement, Niveau 1, sous le numéro 14001345.

Contactez l'agence de Le Mans

02 43 21 93 33

    * Champs obligatoires

    Vos informations sont traitées par HEXAOM et transmises à un conseiller commercial qui vous contactera afin de répondre à votre demande. Les plans et images présentés sur notre site sont la propriété d’HEXAOM et ne peuvent pas être reproduits sans son accord. Pour retrouver notre politique de protection des données personnelles et exercer vos droits conformément à la « loi informatique et liberté » cliquez-ici.