Maison neuve à
Saint-Saturnin (72650) Référence : LL2347680_3

Prix du projet : Maison avec Terrain

prix 219 000 €

  • 5 pièces
  • 2 chambres
  • Surface maison 77 m2

Saint-Saturnin : maison T5 (77 m²) à vendre
EMPLACEMENT PRIVILÉGIÉ - MAISON 5 PIÈCES NEUVE
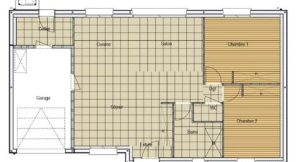
À vendre : à quelques kilomètres du Mans, bénéficiant d'un emplacement privilégié dans Saint-Saturnin (72650), nous sommes heureux de vous présenter cette maison de 5 pièces de plain-pied de 77 m².
Son intérieur compte deux chambres, une cuisine et une salle de bains. Cette maison est neuve.
Le terrain du bien est de 313 m².
Cette maison se situe dans un quartier attractif. On trouve l'École Élémentaire Publique les 7 Plûmes, l'École Maternelle Publique le Petit Monde et le Lycée Agricole Privé les Horizons-Site de Saint Saturnin à moins de 10 minutes à pied et une crèche. Côté transports, il y a trois gares (Neuville-sur-Sarthe, La Guierche et Le Mans) à moins de 10 minutes en voiture. L'autoroute A11 est accessible à 1 km. On trouve un bassin de natation, un tennis, une boulangerie, un commerce et une épicerie à quelques minutes de la maison.
Elle est proposée à l'achat pour 219 000 €.
N'hésitez pas à prendre contact avec Luc LIVET (tél : 07-77-76-37-30) pour toute information sur la propriété. Concrétisez vos projets immobiliers avec Maine Construction Le Mans.

Mentions légales

Terrain proposé par un partenaire foncier selon disponibilités et autorisation de publicité au prix de 63 000 €. Hors droit d'enregistrement et frais de notaire. Terrain + Maison proposés au prix de 219 000 € (Hors branchements et raccordements, papiers peints, peintures, revêtement de sol dans les chambres. Tarif modifiable sans préavis). Etiquette énergie : A. Différents modèles disponibles pour ce terrain. Assurances et garanties du constructeur (RC professionnelle, décennale, dommage ouvrage, garantie de remboursement de l'acompte, livraison à prix et délai convenu) : https://www.maine-construction.fr/mentions-legales/. HEXAOM Services est enregistré auprès de l'ORIAS en tant que Courtier en financement, Niveau 1, sous le numéro 14001345.

Contactez l'agence de Le Mans

02 43 21 93 33

    * Champs obligatoires

    Vos informations sont traitées par HEXAOM et transmises à un conseiller commercial qui vous contactera afin de répondre à votre demande. Les plans et images présentés sur notre site sont la propriété d’HEXAOM et ne peuvent pas être reproduits sans son accord. Pour retrouver notre politique de protection des données personnelles et exercer vos droits conformément à la « loi informatique et liberté » cliquez-ici.