Maison neuve à
Saint-Ouen-en-Belin (72220) Référence : FH2438740_11

Prix du projet : Maison avec Terrain

prix 245 000 €

  • 5 pièces
  • 4 chambres
  • Surface maison 92 m2

Saint-Ouen-en-Belin : maison de 5 pièces (92 m²) en vente
IDÉALEMENT SITUÉE - MAISON 5 PIÈCES NEUVE
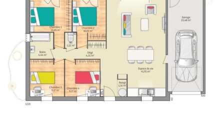
À deux pas du Mans, nous vous proposons en vente, idéalement située dans Saint-Ouen-en-Belin (72220), cette maison de 5 pièces de plain-pied de 92 m² et de 660 m² de terrain.
Elle est composée de quatre chambres, d'une cuisine et d'une salle de bains. La maison est neuve.
Cette propriété se trouve dans un quartier convoité. Il y a l'École Primaire Publique Claire Fontaine à moins de 10 minutes à pied. Côté transports en commun, on trouve les gares Écommoy, Laigné-Saint-Gervais et Mayet à moins de 10 minutes en voiture. Il y a un tennis et deux boulangeries dans les environs.
Elle est à vendre pour la somme de 245 000 €.
Contactez François HOUDAYER (06-23-38-26-90) pour tout renseignement sur la maison. Maine Construction Le Mans est là pour vous accompagner dans tous vos projets immobiliers.

Mentions légales

Terrain proposé par un partenaire foncier selon disponibilités et autorisation de publicité au prix de 43 000 €. Hors droit d'enregistrement et frais de notaire. Terrain + Maison proposés au prix de 245 000 € (Hors branchements et raccordements, papiers peints, peintures, revêtement de sol dans les chambres. Tarif modifiable sans préavis). Etiquette énergie : A. Différents modèles disponibles pour ce terrain. Assurances et garanties du constructeur (RC professionnelle, décennale, dommage ouvrage, garantie de remboursement de l'acompte, livraison à prix et délai convenu) : https://www.maine-construction.fr/mentions-legales/. HEXAOM Services est enregistré auprès de l'ORIAS en tant que Courtier en financement, Niveau 1, sous le numéro 14001345.

Contactez l'agence de Le Mans

02 43 21 93 33

    * Champs obligatoires

    Vos informations sont traitées par HEXAOM et transmises à un conseiller commercial qui vous contactera afin de répondre à votre demande. Les plans et images présentés sur notre site sont la propriété d’HEXAOM et ne peuvent pas être reproduits sans son accord. Pour retrouver notre politique de protection des données personnelles et exercer vos droits conformément à la « loi informatique et liberté » cliquez-ici.