Maison neuve à
Saint-Ouen-en-Belin (72220) Référence : FH2438740_1

Prix du projet : Maison avec Terrain

prix 215 000 €

  • 3 pièces
  • 2 chambres
  • Surface maison 80 m2

VENTE : maison de 3 pièces (80 m²) à Saint-Ouen-en-Belin
IDÉALEMENT SITUÉE - MAISON 3 PIÈCES NEUVE
En vente à deux pas du Mans, ayez le coup de coeur pour cette maison de 3 pièces de 80 m² idéalement située dans Saint-Ouen-en-Belin (72220).
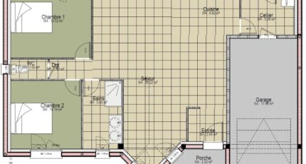
Cette maison compte 2 niveaux. Elle dispose de deux chambres, d'une cuisine et d'une salle de bains. La maison est neuve.
Le terrain du bien est de 660 m².
La maison se situe dans un quartier convoité. L'École Primaire Publique Claire Fontaine se trouve à moins de 10 minutes à pied. Niveau transports, il y a trois gares (Écommoy, Laigné-Saint-Gervais et Mayet) à moins de 10 minutes en voiture. On trouve un tennis et deux boulangeries à proximité.
Elle est proposée à l'achat pour 215 000 €.
Contactez notre agence (HOUDAYER François : 06-23-38-26-90) pour plus d'informations sur la maison. Donnez vie à vos projets immobiliers avec Maine Construction Le Mans.

Mentions légales

Terrain proposé par un partenaire foncier selon disponibilités et autorisation de publicité au prix de 43 000 €. Hors droit d'enregistrement et frais de notaire. Terrain + Maison proposés au prix de 215 000 € (Hors branchements et raccordements, papiers peints, peintures, revêtement de sol dans les chambres. Tarif modifiable sans préavis). Etiquette énergie : A. Différents modèles disponibles pour ce terrain. Assurances et garanties du constructeur (RC professionnelle, décennale, dommage ouvrage, garantie de remboursement de l'acompte, livraison à prix et délai convenu) : https://www.maine-construction.fr/mentions-legales/. HEXAOM Services est enregistré auprès de l'ORIAS en tant que Courtier en financement, Niveau 1, sous le numéro 14001345.

Contactez l'agence de Le Mans

02 43 21 93 33

    * Champs obligatoires

    Vos informations sont traitées par HEXAOM et transmises à un conseiller commercial qui vous contactera afin de répondre à votre demande. Les plans et images présentés sur notre site sont la propriété d’HEXAOM et ne peuvent pas être reproduits sans son accord. Pour retrouver notre politique de protection des données personnelles et exercer vos droits conformément à la « loi informatique et liberté » cliquez-ici.