Maison neuve à
Saint-Ouen-en-Belin (72220) Référence : FH2297661_5

Prix du projet : Maison avec Terrain

prix 219 000 €

  • 4 pièces
  • 3 chambres
  • Surface maison 90 m2

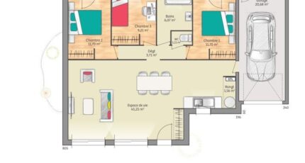
VENTE d'une maison de 4 pièces (90 m²) à Saint-Ouen-en-Belin
EMPLACEMENT PRIVILÉGIÉ - MAISON 4 PIÈCES NEUVE
À vendre à deux pas du Mans, nous vous présentons cette maison de 4 pièces de plain-pied de 90 m² et de 660 m² de terrain, bénéficiant d'un emplacement privilégié dans Saint-Ouen-en-Belin (72220).
Son intérieur inclut trois chambres, une cuisine et une salle de bains. La maison est neuve.
Cette propriété est située dans un secteur prisé. On trouve l'École Primaire Publique Claire Fontaine à moins de 10 minutes à pied. Côté transports en commun, il y a trois gares (Écommoy, Laigné-Saint-Gervais et Mayet) à moins de 10 minutes en voiture. L'autoroute A28 est accessible à 7 km. On trouve un tennis et deux boulangeries dans les environs.
Elle est proposée à l'achat pour 219 000 €.
Contactez notre agence (HOUDAYER François : 06-23-38-26-90) pour obtenir de plus amples renseignements sur la maison, sur les démarches à suivre ou sur les modalités de vente.

Mentions légales

Terrain proposé par un partenaire foncier selon disponibilités et autorisation de publicité au prix de 43 000 €. Hors droit d'enregistrement et frais de notaire. Maison proposée, avec un contrat de construction de maison individuelle, dans le cadre de la loi du 19/12/1990, au prix de 176 000 € (Hors branchements et raccordements, papiers peints, peintures, revêtement de sol dans les chambres, qui sont chiffrés dans les travaux qui restent à charge du client. Tarif modifiable sans préavis). Étiquette énergie : A. Différents modèles disponibles pour ce terrain. Assurances et garanties du constructeur comprises (RC professionnelle, décennale, dommage ouvrage).

Contactez l'agence de Le Mans

02 43 21 93 33

    * Champs obligatoires

    Vos informations sont traitées par HEXAOM et transmises à un conseiller commercial qui vous contactera afin de répondre à votre demande. Les plans et images présentés sur notre site sont la propriété d’HEXAOM et ne peuvent pas être reproduits sans son accord. Pour retrouver notre politique de protection des données personnelles et exercer vos droits conformément à la « loi informatique et liberté » cliquez-ici.