Maison neuve à
Saint-Jean-d'Assé (72380) Référence : FH2317560_9

Prix du projet : Maison avec Terrain

prix 389 000 €

  • 7 pièces
  • 4 chambres
  • Surface maison 115 m2

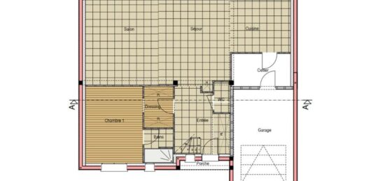
Maison de 7 pièces (115 m²) à vendre à Saint-Jean-d'Assé
QUARTIER RECHERCHÉ - MAISON 7 PIÈCES NEUVE
En vente : à deux pas du Mans, dans un quartier prisé de Saint-Jean-d'Assé (72380), nous sommes heureux de vous présenter cette maison de 7 pièces de 115 m².
C'est une maison de 2 niveaux. Elle est composée de quatre chambres, d'une cuisine et de trois salles de bains. La maison est neuve.
Le terrain du bien s'étend sur 847 m².
La propriété est située dans un secteur convoité. On trouve l'École Primaire Publique Pierre Gagneau à moins de 10 minutes à pied. Niveau transports en commun, il y a six gares à moins de 10 minutes en voiture. L'autoroute A28 est accessible à 6 km. On trouve une bibliothèque, une boulangerie et une supérette dans les environs.
Elle est à vendre pour la somme de 389 000 €.
N'hésitez pas à prendre contact avec notre agence (HOUDAYER François : 06-23-38-26-90) pour obtenir de plus amples informations sur la maison. Maine Construction Le Mans vous accompagne dans tous vos projets immobiliers et à toutes les étapes de votre projet.

Mentions légales

Terrain proposé par un partenaire foncier selon disponibilités et autorisation de publicité au prix de 59 900 €. Hors droit d'enregistrement et frais de notaire. Terrain + Maison proposés au prix de 329 100 € (Hors branchements et raccordements, papiers peints, peintures, revêtement de sol dans les chambres. Tarif modifiable sans préavis). Etiquette énergie : A. Différents modèles disponibles pour ce terrain. Assurances et garanties du constructeur (RC professionnelle, décennale, dommage ouvrage, garantie de remboursement de l'acompte, livraison à prix et délai convenu) : https://www.maine-construction.fr/mentions-legales/. HEXAOM Services est enregistré auprès de l'ORIAS en tant que Courtier en financement, Niveau 1, sous le numéro 14001345.

Contactez l'agence de Le Mans

02 43 21 93 33

    * Champs obligatoires

    Vos informations sont traitées par HEXAOM et transmises à un conseiller commercial qui vous contactera afin de répondre à votre demande. Les plans et images présentés sur notre site sont la propriété d’HEXAOM et ne peuvent pas être reproduits sans son accord. Pour retrouver notre politique de protection des données personnelles et exercer vos droits conformément à la « loi informatique et liberté » cliquez-ici.