Maison neuve à
Saint-Jean-d'Assé (72380) Référence : FH2317560_8

Prix du projet : Maison avec Terrain

prix 219 000 €

  • 3 pièces
  • 1 chambre
  • Surface maison 70 m2

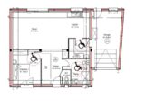
VENTE : maison de 3 pièces (70 m²) à Saint-Jean-d'Assé
QUARTIER RECHERCHÉ - MAISON 3 PIÈCES NEUVE
À vendre : située à quelques kilomètres du Mans, Maine Construction Le Mans vous présente cette maison de 3 pièces de plain-pied de 70 m², dans un quartier attractif de Saint-Jean-d'Assé (72380).
Son intérieur est composé d'une chambre, d'une cuisine et d'une salle de bains. La maison est neuve.
Le terrain de la propriété s'étend sur 847 m².
La propriété se trouve dans un secteur recherché. L'École Primaire Publique Pierre Gagneau est implantée à moins de 10 minutes à pied. Niveau transports en commun, on trouve six gares à moins de 10 minutes en voiture. L'autoroute A28 est accessible à 6 km. Il y a une bibliothèque, une boulangerie et une supérette dans les environs.
Son prix de vente est de 219 000 €.
Contactez François HOUDAYER (tél : 06-23-38-26-90) pour plus de renseignements sur la maison, sur les démarches à suivre ou sur les modalités de vente. Donnez vie à vos projets immobiliers avec Maine Construction Le Mans.

Mentions légales

Terrain proposé par un partenaire foncier selon disponibilités et autorisation de publicité au prix de 59 900 €. Hors droit d'enregistrement et frais de notaire. Maison proposée, avec un contrat de construction de maison individuelle, dans le cadre de la loi du 19/12/1990, au prix de 159 100 € (Hors branchements et raccordements, papiers peints, peintures, revêtement de sol dans les chambres, qui sont chiffrés dans les travaux qui restent à charge du client. Tarif modifiable sans préavis). Étiquette énergie : A. Différents modèles disponibles pour ce terrain. Assurances et garanties du constructeur comprises (RC professionnelle, décennale, dommage ouvrage).

Contactez l'agence de Le Mans

02 43 21 93 33

    * Champs obligatoires

    Vos informations sont traitées par HEXAOM et transmises à un conseiller commercial qui vous contactera afin de répondre à votre demande. Les plans et images présentés sur notre site sont la propriété d’HEXAOM et ne peuvent pas être reproduits sans son accord. Pour retrouver notre politique de protection des données personnelles et exercer vos droits conformément à la « loi informatique et liberté » cliquez-ici.