Maison neuve à
Saint-Jean-d'Assé (72380) Référence : FH2317560_4

Prix du projet : Maison avec Terrain

prix 326 000 €

  • 6 pièces
  • 4 chambres
  • Surface maison 128 m2

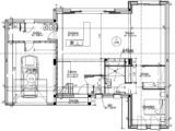
VENTE d'une maison de 6 pièces (128 m²) à Saint-Jean-d'Assé
QUARTIER RECHERCHÉ - MAISON 6 PIÈCES NEUVE
En vente : localisée à quelques kilomètres du Mans, votre agence Maine Construction Le Mans est heureuse de vous présenter, située dans un quartier prisé de Saint-Jean-d'Assé (72380), cette maison de 6 pièces de 128 m² et de 847 m² de terrain. Elle comporte quatre chambres, une cuisine et deux salles de bains.
Cette maison possède 2 niveaux. Elle est neuve.
Cette propriété est située dans un secteur convoité. L'École Primaire Publique Pierre Gagneau se trouve à moins de 10 minutes à pied. Côté transports en commun, il y a six gares à moins de 10 minutes en voiture. L'autoroute A28 est accessible à 6 km. On trouve une bibliothèque, une boulangerie et une supérette à proximité du bien.
Elle est à vendre pour la somme de 326 000 €.
Prenez contact avec notre agence (HOUDAYER François : 06-23-38-26-90) pour toute information sur la maison, sur les modalités de vente ou sur les démarches à suivre. Maine Construction Le Mans vous accompagne dans tous vos projets immobiliers et à toutes les étapes de l'achat.

Mentions légales

Terrain proposé par un partenaire foncier selon disponibilités et autorisation de publicité au prix de 59 900 €. Hors droit d'enregistrement et frais de notaire. Maison proposée, avec un contrat de construction de maison individuelle, dans le cadre de la loi du 19/12/1990, au prix de 266 100 € (Hors branchements et raccordements, papiers peints, peintures, revêtement de sol dans les chambres, qui sont chiffrés dans les travaux qui restent à charge du client. Tarif modifiable sans préavis). Étiquette énergie : A. Différents modèles disponibles pour ce terrain. Assurances et garanties du constructeur comprises (RC professionnelle, décennale, dommage ouvrage).

Contactez l'agence de Le Mans

02 43 21 93 33

    * Champs obligatoires

    Vos informations sont traitées par HEXAOM et transmises à un conseiller commercial qui vous contactera afin de répondre à votre demande. Les plans et images présentés sur notre site sont la propriété d’HEXAOM et ne peuvent pas être reproduits sans son accord. Pour retrouver notre politique de protection des données personnelles et exercer vos droits conformément à la « loi informatique et liberté » cliquez-ici.