Maison neuve à
Saint-Jean-d'Assé (72380) Référence : FH2317560_3

Prix du projet : Maison avec Terrain

prix 239 000 €

  • 4 pièces
  • 3 chambres
  • Surface maison 90 m2

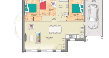
Saint-Jean-d'Assé : maison F4 (90 m²) en vente
QUARTIER RECHERCHÉ - MAISON 4 PIÈCES NEUVE
En vente à quelques kilomètres du Mans, nous sommes heureux de vous proposer cette maison de 4 pièces de plain-pied de 90 m² dans un quartier attractif de Saint-Jean-d'Assé (72380).
Son intérieur compte trois chambres, une cuisine et une salle de bains. Cette maison est neuve.
Le terrain de la propriété s'étend sur 847 m².
Le bien se trouve dans un secteur prisé. L'École Primaire Publique Pierre Gagneau est implantée à moins de 10 minutes à pied. Niveau transports en commun, il y a six gares à moins de 10 minutes en voiture. L'autoroute A28 est accessible à 6 km. On trouve une bibliothèque, une boulangerie et une supérette dans les environs.
Son prix de vente est de 239 000 €.
Prenez contact avec François HOUDAYER (tél : 06-23-38-26-90) pour tout renseignement sur la maison et sur les démarches à suivre.

Mentions légales

Terrain proposé par un partenaire foncier selon disponibilités et autorisation de publicité au prix de 59 900 €. Hors droit d'enregistrement et frais de notaire. Maison proposée, avec un contrat de construction de maison individuelle, dans le cadre de la loi du 19/12/1990, au prix de 179 100 € (Hors branchements et raccordements, papiers peints, peintures, revêtement de sol dans les chambres, qui sont chiffrés dans les travaux qui restent à charge du client. Tarif modifiable sans préavis). Étiquette énergie : A. Différents modèles disponibles pour ce terrain. Assurances et garanties du constructeur comprises (RC professionnelle, décennale, dommage ouvrage).

Contactez l'agence de Le Mans

02 43 21 93 33

    * Champs obligatoires

    Vos informations sont traitées par HEXAOM et transmises à un conseiller commercial qui vous contactera afin de répondre à votre demande. Les plans et images présentés sur notre site sont la propriété d’HEXAOM et ne peuvent pas être reproduits sans son accord. Pour retrouver notre politique de protection des données personnelles et exercer vos droits conformément à la « loi informatique et liberté » cliquez-ici.