Maison neuve à
Saint-Jean-d'Assé (72380) Référence : FH2317560_15

Prix du projet : Maison avec Terrain

prix 270 000 €

  • 4 pièces
  • 4 chambres
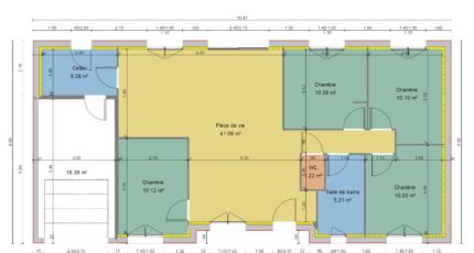
  • Surface maison 90 m2

VENTE : maison F4 (90 m²) à Saint-Jean-d'Assé
QUARTIER RECHERCHÉ - MAISON 4 PIÈCES NEUVE
À quelques kilomètres du Mans, nous sommes heureux de vous présenter cette maison de 4 pièces de plain-pied de 90 m² et de 847 m² de terrain située dans un secteur prisé de Saint-Jean-d'Assé (72380).
Elle propose quatre chambres, une cuisine et une salle de bains. Cette maison est neuve.
Cette maison est située dans un quartier convoité. L'École Primaire Publique Pierre Gagneau se trouve à moins de 10 minutes à pied. Niveau transports, il y a six gares à moins de 10 minutes en voiture. L'autoroute A28 est accessible à 6 km. On trouve une bibliothèque, une boulangerie et une supérette à proximité du bien.
Elle est à vendre pour la somme de 270 000 €.
Contactez notre agence (François HOUDAYER : 06-23-38-26-90) pour toute question sur le bien. Maine Construction Le Mans vous accompagne dans tous vos projets immobiliers et à toutes les étapes de l'achat.

Mentions légales

Terrain proposé par un partenaire foncier selon disponibilités et autorisation de publicité au prix de 59 900 €. Hors droit d'enregistrement et frais de notaire. Maison proposée, avec un contrat de construction de maison individuelle, dans le cadre de la loi du 19/12/1990, au prix de 210 100 € (Hors branchements et raccordements, papiers peints, peintures, revêtement de sol dans les chambres, qui sont chiffrés dans les travaux qui restent à charge du client. Tarif modifiable sans préavis). Étiquette énergie : A. Différents modèles disponibles pour ce terrain. Assurances et garanties du constructeur comprises (RC professionnelle, décennale, dommage ouvrage).

Contactez l'agence de Le Mans

02 43 21 93 33

    * Champs obligatoires

    Vos informations sont traitées par HEXAOM et transmises à un conseiller commercial qui vous contactera afin de répondre à votre demande. Les plans et images présentés sur notre site sont la propriété d’HEXAOM et ne peuvent pas être reproduits sans son accord. Pour retrouver notre politique de protection des données personnelles et exercer vos droits conformément à la « loi informatique et liberté » cliquez-ici.