Maison neuve à
Saint-Jean-d'Assé (72380) Référence : FH2317560_10

Prix du projet : Maison avec Terrain

prix 415 000 €

  • 6 pièces
  • 4 chambres
  • Surface maison 160 m2

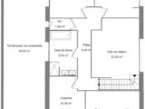
VENTE d'une maison de 6 pièces (160 m²) à Saint-Jean-d'Assé
QUARTIER RECHERCHÉ - MAISON 6 PIÈCES NEUVE
À vendre à deux pas du Mans, nous sommes heureux de vous proposer cette maison de 6 pièces de 160 m² dans un quartier prisé de Saint-Jean-d'Assé (72380). Elle dispose de quatre chambres, d'une cuisine et de deux salles de bains.
Le terrain de la propriété s'étend sur 847 m².
Cette maison comporte 2 niveaux. Elle est neuve.
Cette maison se trouve dans un secteur attractif. L'École Primaire Publique Pierre Gagneau est implantée à moins de 10 minutes à pied. Côté transports en commun, il y a six gares à moins de 10 minutes en voiture. L'autoroute A28 est accessible à 6 km. On trouve une bibliothèque, une boulangerie et une supérette dans les environs.
Elle est à vendre pour la somme de 415 000 €.
N'hésitez pas à prendre contact avec notre agence (François HOUDAYER : 06-23-38-26-90) pour toute information sur la maison, sur les modalités de vente et sur les démarches à suivre. Maine Construction Le Mans est là pour vous accompagner dans tous vos projets immobiliers.

Mentions légales

Terrain proposé par un partenaire foncier selon disponibilités et autorisation de publicité au prix de 59 900 €. Hors droit d'enregistrement et frais de notaire. Maison proposée, avec un contrat de construction de maison individuelle, dans le cadre de la loi du 19/12/1990, au prix de 355 100 € (Hors branchements et raccordements, papiers peints, peintures, revêtement de sol dans les chambres, qui sont chiffrés dans les travaux qui restent à charge du client. Tarif modifiable sans préavis). Étiquette énergie : A. Différents modèles disponibles pour ce terrain. Assurances et garanties du constructeur comprises (RC professionnelle, décennale, dommage ouvrage).

Contactez l'agence de Le Mans

02 43 21 93 33

    * Champs obligatoires

    Vos informations sont traitées par HEXAOM et transmises à un conseiller commercial qui vous contactera afin de répondre à votre demande. Les plans et images présentés sur notre site sont la propriété d’HEXAOM et ne peuvent pas être reproduits sans son accord. Pour retrouver notre politique de protection des données personnelles et exercer vos droits conformément à la « loi informatique et liberté » cliquez-ici.