Maison neuve à
Saint-Gervais-en-Belin (72220) Référence : LL2346421_6

Prix du projet : Maison avec Terrain

prix 259 000 €

  • 5 pièces
  • 4 chambres
  • Surface maison 101 m2

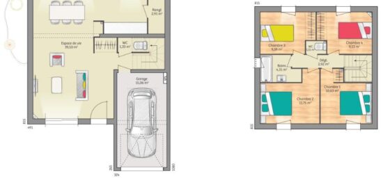
VENTE d'une maison de 5 pièces (101 m²) à Saint-Gervais-en-Belin
PROCHE DU MANS - MAISON 5 PIÈCES NEUVE
En vente : située à 13 km du Mans, à Saint-Gervais-en-Belin (72220), découvrez cette maison de 5 pièces de plain-pied de 101 m². Son intérieur propose quatre chambres, une cuisine et une salle de bains.
Le terrain de la propriété s'étend sur 395 m².
La maison est neuve.
Tous les types d'établissements scolaires (de la maternelle au lycée) se trouvent à moins de 10 minutes en voiture, tout comme quatre crèches à moins de 10 minutes à pied. Niveau transports en commun, il y a les gares Laigné-Saint-Gervais, Arnage et Écommoy à moins de 10 minutes en voiture. On trouve un accès à l'autoroute A28 à 10 km. On trouve des tennis, des bibliothèques, un port de plaisance, deux bassins de natation, des supermarchés, des boulangeries, des commerces, quatre épiceries et trois bureaux de poste à quelques minutes. Enfin, 2 marchés animent le quartier.
Elle est à vendre pour la somme de 259 000 €.
Contactez notre agence (LIVET Luc : 07-77-76-37-30) Maine Construction Le Mans pour obtenir de plus amples informations sur cette maison, sur les modalités de vente et sur les démarches à suivre.

Mentions légales

Terrain proposé par un partenaire foncier selon disponibilités et autorisation de publicité au prix de 44 000 €. Hors droit d'enregistrement et frais de notaire. Maison proposée, avec un contrat de construction de maison individuelle, dans le cadre de la loi du 19/12/1990, au prix de 215 000 € (Hors branchements et raccordements, papiers peints, peintures, revêtement de sol dans les chambres, qui sont chiffrés dans les travaux qui restent à charge du client. Tarif modifiable sans préavis). Étiquette énergie : A. Différents modèles disponibles pour ce terrain. Assurances et garanties du constructeur comprises (RC professionnelle, décennale, dommage ouvrage).

Contactez l'agence de Le Mans

02 43 21 93 33

    * Champs obligatoires

    Vos informations sont traitées par HEXAOM et transmises à un conseiller commercial qui vous contactera afin de répondre à votre demande. Les plans et images présentés sur notre site sont la propriété d’HEXAOM et ne peuvent pas être reproduits sans son accord. Pour retrouver notre politique de protection des données personnelles et exercer vos droits conformément à la « loi informatique et liberté » cliquez-ici.