Maison neuve à
Saint-Gervais-en-Belin (72220) Référence : LL2346421_2

Prix du projet : Maison avec Terrain

prix 194 000 €

  • 4 pièces
  • 3 chambres
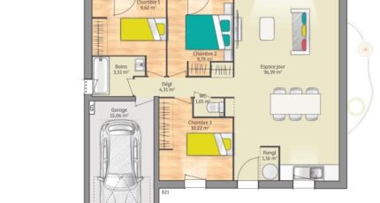
  • Surface maison 76 m2

Saint-Gervais-en-Belin : maison de 4 pièces (76 m²) à vendre
MAISON 4 PIÈCES NEUVE - PROCHE DU MANS
À vendre : à quelques kilomètres du Mans, Maine Construction Le Mans vous présente à Saint-Gervais-en-Belin (72220), cette maison de 4 pièces de plain-pied de 76 m² et de 395 m² de terrain. Elle propose trois chambres, une cuisine et une salle de bains.
La maison est neuve.
Il y a des établissements scolaires de tous niveaux (de la maternelle au lycée) à moins de 10 minutes en voiture, tout comme quatre structures d'accueil pour les tout-petits à moins de 10 minutes à pied. Niveau transports, on trouve trois gares (Laigné-Saint-Gervais, Arnage et Écommoy) à moins de 10 minutes en voiture. On trouve un accès à l'autoroute A28 à 10 km. Il y a des tennis, des bibliothèques, un port de plaisance, deux bassins de natation, des supermarchés, des boulangeries, des commerces, quatre supérettes et trois bureaux de poste à proximité. 2 marchés animent le quartier.
Son prix de vente est de 194 000 €.
Prenez contact avec notre agence (LIVET Luc : 07-77-76-37-30) pour plus d'informations sur cette maison. Maine Construction Le Mans vous accompagne dans toutes vos démarches et dans tous vos projets immobiliers.

Mentions légales

Terrain proposé par un partenaire foncier selon disponibilités et autorisation de publicité au prix de 44 000 €. Hors droit d'enregistrement et frais de notaire. Maison proposée, avec un contrat de construction de maison individuelle, dans le cadre de la loi du 19/12/1990, au prix de 150 000 € (Hors branchements et raccordements, papiers peints, peintures, revêtement de sol dans les chambres, qui sont chiffrés dans les travaux qui restent à charge du client. Tarif modifiable sans préavis). Étiquette énergie : A. Différents modèles disponibles pour ce terrain. Assurances et garanties du constructeur comprises (RC professionnelle, décennale, dommage ouvrage).

Contactez l'agence de Le Mans

02 43 21 93 33

    * Champs obligatoires

    Vos informations sont traitées par HEXAOM et transmises à un conseiller commercial qui vous contactera afin de répondre à votre demande. Les plans et images présentés sur notre site sont la propriété d’HEXAOM et ne peuvent pas être reproduits sans son accord. Pour retrouver notre politique de protection des données personnelles et exercer vos droits conformément à la « loi informatique et liberté » cliquez-ici.