Maison neuve à
Roézé-sur-Sarthe (72210) Référence : LL2326127_3

Prix du projet : Maison avec Terrain

prix 299 000 €

  • 6 pièces
  • 4 chambres
  • Surface maison 127 m2

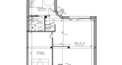
VENTE d'une maison de 6 pièces (127 m²) à Roézé-sur-Sarthe
EMPLACEMENT PRIVILÉGIÉ - MAISON 6 PIÈCES NEUVE
À deux pas du Mans, nous sommes heureux de vous proposer à vendre, bénéficiant d'un emplacement privilégié dans Roézé-sur-Sarthe (72210), cette maison de 6 pièces de 127 m². Elle dispose de quatre chambres, d'une cuisine et d'une salle de bains.
Le terrain de cette maison s'étend sur 404 m².
C'est une maison de 2 niveaux. Elle est neuve.
La maison se situe dans un secteur attractif. On trouve l'École Primaire Privée Notre-Dame-Dame Martin, l'École Maternelle Publique Françoise Aguillon et l'École Élémentaire Publique Chemin de l'Être à moins de 10 minutes à pied. Côté transports en commun, il y a les gares La Suze-sur-Sarthe et Voivres-lès-le-Mans à moins de 10 minutes en voiture. Il y a un accès à l'autoroute A11 à 7 km. On trouve une bibliothèque, un tennis et une boulangerie à proximité.
Elle est à vendre pour la somme de 299 000 €.
Contactez Luc LIVET (07-77-76-37-30) pour toute information sur la propriété, sur les démarches à suivre ou sur les modalités de vente. Maine Construction Le Mans est là pour vous accompagner dans tous vos projets immobiliers.

Mentions légales

Terrain proposé par un partenaire foncier selon disponibilités et autorisation de publicité au prix de 40 300 €. Hors droit d'enregistrement et frais de notaire. Maison proposée, avec un contrat de construction de maison individuelle, dans le cadre de la loi du 19/12/1990, au prix de 258 700 € (Hors branchements et raccordements, papiers peints, peintures, revêtement de sol dans les chambres, qui sont chiffrés dans les travaux qui restent à charge du client. Tarif modifiable sans préavis). Étiquette énergie : A. Différents modèles disponibles pour ce terrain. Assurances et garanties du constructeur comprises (RC professionnelle, décennale, dommage ouvrage).

Contactez l'agence de Le Mans

02 43 21 93 33

    * Champs obligatoires

    Vos informations sont traitées par HEXAOM et transmises à un conseiller commercial qui vous contactera afin de répondre à votre demande. Les plans et images présentés sur notre site sont la propriété d’HEXAOM et ne peuvent pas être reproduits sans son accord. Pour retrouver notre politique de protection des données personnelles et exercer vos droits conformément à la « loi informatique et liberté » cliquez-ici.