Maison neuve à
Roézé-sur-Sarthe (72210) Référence : FH2277627_7

Prix du projet : Maison avec Terrain

prix 369 000 €

  • 5 pièces
  • 4 chambres
  • Surface maison 144 m2

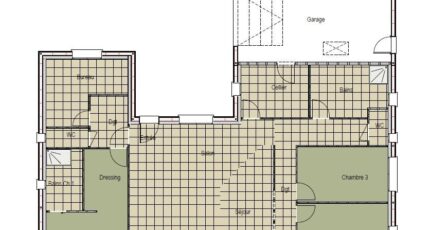
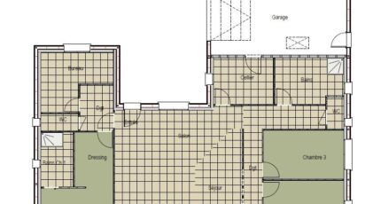
Roézé-sur-Sarthe : maison de 5 pièces (144 m²) à vendre
PROCHE GARE - MAISON 5 PIÈCES NEUVE
En vente : située à 14 km du Mans, nous sommes ravis de vous présenter cette maison de 5 pièces de plain-pied de 144 m² et de 398 m² de terrain proche de la gare de Roézé-sur-Sarthe (72210).
Elle propose quatre chambres, une cuisine et deux salles de bains. La maison est neuve.
L'École Primaire Privée Notre-Dame-Dame Martin, l'École Maternelle Publique Françoise Aguillon et l'École Élémentaire Publique Chemin de l'Être se trouvent à moins de 10 minutes à pied. Côté transports, il y a les gares La Suze-sur-Sarthe et Voivres-lès-le-Mans à moins de 10 minutes en voiture. L'autoroute A11 est accessible à 7 km. On trouve une bibliothèque, un tennis et une boulangerie à quelques minutes.
Elle est à vendre pour la somme de 369 000 €.
Prenez contact avec notre agence (François HOUDAYER : 06-23-38-26-90) pour toute information sur la maison ou sur les modalités de vente. Maine Construction Le Mans vous accompagne dans toutes vos démarches et à toutes les étapes de l'achat.

Mentions légales

Terrain proposé par un partenaire foncier selon disponibilités et autorisation de publicité au prix de 42 000 €. Hors droit d'enregistrement et frais de notaire. Maison proposée, avec un contrat de construction de maison individuelle, dans le cadre de la loi du 19/12/1990, au prix de 327 000 € (Hors branchements et raccordements, papiers peints, peintures, revêtement de sol dans les chambres, qui sont chiffrés dans les travaux qui restent à charge du client. Tarif modifiable sans préavis). Étiquette énergie : A. Différents modèles disponibles pour ce terrain. Assurances et garanties du constructeur comprises (RC professionnelle, décennale, dommage ouvrage).

Contactez l'agence de Le Mans

02 43 21 93 33

    * Champs obligatoires

    Vos informations sont traitées par HEXAOM et transmises à un conseiller commercial qui vous contactera afin de répondre à votre demande. Les plans et images présentés sur notre site sont la propriété d’HEXAOM et ne peuvent pas être reproduits sans son accord. Pour retrouver notre politique de protection des données personnelles et exercer vos droits conformément à la « loi informatique et liberté » cliquez-ici.