Maison neuve à
Parigné-l'Évêque (72250) Référence : FH2468980_9

Prix du projet : Maison avec Terrain

prix 325 000 €

  • 4 pièces
  • 3 chambres
  • Surface maison 105 m2

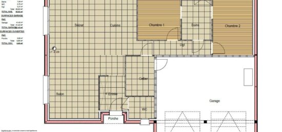
Maison F4 (105 m²) en vente à Parigné-l'Évêque
EMPLACEMENT PRIVILÉGIÉ - MAISON 4 PIÈCES NEUVE
À deux pas du Mans, nous vous proposons cette maison de 4 pièces de plain-pied de 105 m² et de 1 500 m² de terrain à vendre, bénéficiant d'un emplacement d'exception dans Parigné-l'Évêque (72250).
Elle dispose de trois chambres, d'une cuisine et d'une salle de bains. La maison est neuve.
Cette maison se situe dans un quartier prisé. On trouve quatre établissements scolaires à moins de 10 minutes à pied et une crèche. Niveau transports, il y a la gare Champagné à moins de 10 minutes en voiture. On trouve un accès à l'autoroute A28 à 4 km. On trouve un tennis, une bibliothèque, deux commerces, une boucherie-charcuterie et un bureau de poste à quelques minutes du bien.
Elle est proposée à l'achat pour 325 000 €.
Contactez François HOUDAYER (tél : 06-23-38-26-90) pour tout renseignement sur la maison. Maine Construction Le Mans vous accompagne dans toutes vos démarches et dans tous vos projets immobiliers.

Mentions légales

Terrain proposé par un partenaire foncier selon disponibilités et autorisation de publicité au prix de 89 000 €. Hors droit d'enregistrement et frais de notaire. Terrain + Maison proposés au prix de 325 000 € (Hors branchements et raccordements, papiers peints, peintures, revêtement de sol dans les chambres. Tarif modifiable sans préavis). Etiquette énergie : A. Différents modèles disponibles pour ce terrain. Assurances et garanties du constructeur (RC professionnelle, décennale, dommage ouvrage, garantie de remboursement de l'acompte, livraison à prix et délai convenu) : https://www.maine-construction.fr/mentions-legales/. HEXAOM Services est enregistré auprès de l'ORIAS en tant que Courtier en financement, Niveau 1, sous le numéro 14001345.

Contactez l'agence de Le Mans

02 43 21 93 33

    * Champs obligatoires

    Vos informations sont traitées par HEXAOM et transmises à un conseiller commercial qui vous contactera afin de répondre à votre demande. Les plans et images présentés sur notre site sont la propriété d’HEXAOM et ne peuvent pas être reproduits sans son accord. Pour retrouver notre politique de protection des données personnelles et exercer vos droits conformément à la « loi informatique et liberté » cliquez-ici.