Maison neuve à
Parigné-l'Évêque (72250) Référence : FH2468980_4

Prix du projet : Maison avec Terrain

prix 315 000 €

  • 4 pièces
  • 2 chambres
  • Surface maison 94 m2

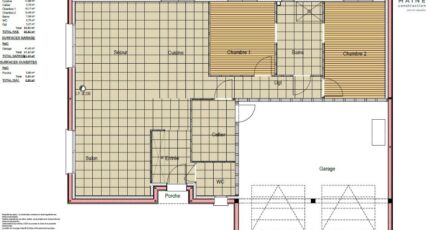
Maison de 4 pièces (94 m²) à vendre à Parigné-l'Évêque
EMPLACEMENT PRIVILÉGIÉ - MAISON 4 PIÈCES NEUVE
En vente : à deux pas du Mans, laissez vous charmer par cette maison de 4 pièces de plain-pied de 94 m², bénéficiant d'un emplacement d'exception dans Parigné-l'Évêque (72250). Conçue de plain-pied, elle compte deux chambres, une cuisine et une salle de bains.
Le terrain du bien est de 1 500 m².
La maison est neuve.
La maison est située dans un quartier prisé. Quatre établissements scolaires sont implantés à moins de 10 minutes à pied, tout comme une crèche. Niveau transports en commun, on trouve la gare Champagné à moins de 10 minutes en voiture. Il y a un accès à l'autoroute A28 à 4 km. Il y a un tennis, une bibliothèque, deux commerces, une boucherie-charcuterie et un bureau de poste à quelques minutes à peine.
Son prix de vente est de 315 000 €.
Prenez contact avec notre agence (HOUDAYER François : 06-23-38-26-90) pour plus de renseignements sur la maison. Faites de vos projets immobiliers une réalité avec Maine Construction Le Mans.

Mentions légales

Terrain proposé par un partenaire foncier selon disponibilités et autorisation de publicité au prix de 89 000 €. Hors droit d'enregistrement et frais de notaire. Terrain + Maison proposés au prix de 315 000 € (Hors branchements et raccordements, papiers peints, peintures, revêtement de sol dans les chambres. Tarif modifiable sans préavis). Etiquette énergie : A. Différents modèles disponibles pour ce terrain. Assurances et garanties du constructeur (RC professionnelle, décennale, dommage ouvrage, garantie de remboursement de l'acompte, livraison à prix et délai convenu) : https://www.maine-construction.fr/mentions-legales/. HEXAOM Services est enregistré auprès de l'ORIAS en tant que Courtier en financement, Niveau 1, sous le numéro 14001345.

Contactez l'agence de Le Mans

02 43 21 93 33

    * Champs obligatoires

    Vos informations sont traitées par HEXAOM et transmises à un conseiller commercial qui vous contactera afin de répondre à votre demande. Les plans et images présentés sur notre site sont la propriété d’HEXAOM et ne peuvent pas être reproduits sans son accord. Pour retrouver notre politique de protection des données personnelles et exercer vos droits conformément à la « loi informatique et liberté » cliquez-ici.