Maison neuve à
Parigné-l'Évêque (72250) Référence : FH2468980_13

Prix du projet : Maison avec Terrain

prix 315 000 €

  • 5 pièces
  • 3 chambres
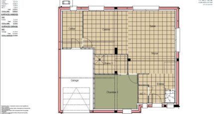
  • Surface maison 113 m2

VENTE : maison de 5 pièces (113 m²) à Parigné-l'Évêque
EMPLACEMENT PRIVILÉGIÉ - MAISON 5 PIÈCES NEUVE
À vendre : à deux pas du Mans, bénéficiant d'un emplacement d'exception dans Parigné-l'Évêque (72250), Maine Construction Le Mans vous présente cette maison de 5 pièces de 113 m² et de 1 500 m² de terrain. Son intérieur se divise en trois chambres, une cuisine et deux salles de bains.
Il s'agit d'une maison de 2 niveaux. Elle est neuve.
Cette maison se situe dans un quartier attractif. Il y a quatre établissements scolaires à moins de 10 minutes à pied et une crèche. Côté transports en commun, on trouve la gare Champagné à moins de 10 minutes en voiture. Il y a un accès à l'autoroute A28 à 4 km. Il y a un tennis, une bibliothèque, deux commerces, une boucherie-charcuterie et un bureau de poste à quelques minutes du logement.
Elle est proposée à l'achat pour 315 000 €.
Contactez notre agence (HOUDAYER François : 06-23-38-26-90) pour toute information sur la maison ou sur les démarches à suivre.

Mentions légales

Terrain proposé par un partenaire foncier selon disponibilités et autorisation de publicité au prix de 89 000 €. Hors droit d'enregistrement et frais de notaire. Terrain + Maison proposés au prix de 315 000 € (Hors branchements et raccordements, papiers peints, peintures, revêtement de sol dans les chambres. Tarif modifiable sans préavis). Etiquette énergie : A. Différents modèles disponibles pour ce terrain. Assurances et garanties du constructeur (RC professionnelle, décennale, dommage ouvrage, garantie de remboursement de l'acompte, livraison à prix et délai convenu) : https://www.maine-construction.fr/mentions-legales/. HEXAOM Services est enregistré auprès de l'ORIAS en tant que Courtier en financement, Niveau 1, sous le numéro 14001345.

Contactez l'agence de Le Mans

02 43 21 93 33

    * Champs obligatoires

    Vos informations sont traitées par HEXAOM et transmises à un conseiller commercial qui vous contactera afin de répondre à votre demande. Les plans et images présentés sur notre site sont la propriété d’HEXAOM et ne peuvent pas être reproduits sans son accord. Pour retrouver notre politique de protection des données personnelles et exercer vos droits conformément à la « loi informatique et liberté » cliquez-ici.