Maison neuve à
Parigné-l'Évêque (72250) Référence : FH2463505_4

Prix du projet : Maison avec Terrain

prix 311 000 €

  • 6 pièces
  • 3 chambres
  • Surface maison 98 m2

VENTE : maison de 6 pièces (98 m²) à Parigné-l'Évêque
EMPLACEMENT PRIVILÉGIÉ - MAISON 6 PIÈCES NEUVE
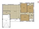
À vendre à deux pas du Mans, Maine Construction Le Mans vous présente cette maison de 6 pièces de plain-pied de 98 m² et de 1 130 m² de terrain bénéficiant d'un emplacement d'exception dans Parigné-l'Évêque (72250).
Elle se divise en trois chambres, une cuisine et deux salles de bains. La maison est neuve.
Cette maison se situe dans un quartier recherché. Quatre établissements scolaires se trouvent à moins de 10 minutes à pied, tout comme une structure d'accueil pour la petite enfance. Niveau transports, il y a la gare Champagné à moins de 10 minutes en voiture. L'autoroute A28 est accessible à 4 km. On trouve un tennis, une bibliothèque, deux commerces, un bureau de poste et une boucherie-charcuterie dans les environs.
Son prix de vente est de 311 000 €.
Contactez notre agence (François HOUDAYER : 06-23-38-26-90) pour obtenir de plus amples renseignements sur la maison ou sur les modalités de vente.

Mentions légales

Terrain proposé par un partenaire foncier selon disponibilités et autorisation de publicité au prix de 80 000 €. Hors droit d'enregistrement et frais de notaire. Terrain + Maison proposés au prix de 311 000 € (Hors branchements et raccordements, papiers peints, peintures, revêtement de sol dans les chambres. Tarif modifiable sans préavis). Etiquette énergie : A. Différents modèles disponibles pour ce terrain. Assurances et garanties du constructeur (RC professionnelle, décennale, dommage ouvrage, garantie de remboursement de l'acompte, livraison à prix et délai convenu) : https://www.maine-construction.fr/mentions-legales/. HEXAOM Services est enregistré auprès de l'ORIAS en tant que Courtier en financement, Niveau 1, sous le numéro 14001345.

Contactez l'agence de Le Mans

02 43 21 93 33

    * Champs obligatoires

    Vos informations sont traitées par HEXAOM et transmises à un conseiller commercial qui vous contactera afin de répondre à votre demande. Les plans et images présentés sur notre site sont la propriété d’HEXAOM et ne peuvent pas être reproduits sans son accord. Pour retrouver notre politique de protection des données personnelles et exercer vos droits conformément à la « loi informatique et liberté » cliquez-ici.