Maison neuve à
Parigné-l'Évêque (72250) Référence : FH2463505_11

Prix du projet : Maison avec Terrain

prix 370 000 €

  • 7 pièces
  • 3 chambres
  • Surface maison 134 m2

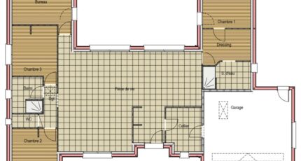
Parigné-l'Évêque : maison de 7 pièces (134 m²) à vendre
EMPLACEMENT PRIVILÉGIÉ - MAISON 7 PIÈCES NEUVE
En vente : à deux pas du Mans, Maine Construction Le Mans vous propose cette maison de 7 pièces de plain-pied de 134 m² et de 1 130 m² de terrain, bénéficiant d'un emplacement d'exception dans Parigné-l'Évêque (72250). Conçue de plain-pied, elle compte trois chambres, une cuisine et deux salles de bains.
Cette maison est neuve.
La propriété se situe dans un secteur prisé. Quatre établissements scolaires se trouvent à moins de 10 minutes à pied, tout comme une crèche. Côté transports, il y a la gare Champagné à moins de 10 minutes en voiture. Il y a un accès à l'autoroute A28 à 4 km. On trouve un tennis, une bibliothèque, deux commerces, une boucherie-charcuterie et un bureau de poste à quelques minutes de la maison.
Elle est proposée à l'achat pour 370 000 €.
Contactez notre agence (François HOUDAYER : 06-23-38-26-90) pour toute question sur la maison ou sur les démarches à suivre. Donnez vie à vos projets immobiliers avec Maine Construction Le Mans.

Mentions légales

Terrain proposé par un partenaire foncier selon disponibilités et autorisation de publicité au prix de 80 000 €. Hors droit d'enregistrement et frais de notaire. Terrain + Maison proposés au prix de 370 000 € (Hors branchements et raccordements, papiers peints, peintures, revêtement de sol dans les chambres. Tarif modifiable sans préavis). Etiquette énergie : A. Différents modèles disponibles pour ce terrain. Assurances et garanties du constructeur (RC professionnelle, décennale, dommage ouvrage, garantie de remboursement de l'acompte, livraison à prix et délai convenu) : https://www.maine-construction.fr/mentions-legales/. HEXAOM Services est enregistré auprès de l'ORIAS en tant que Courtier en financement, Niveau 1, sous le numéro 14001345.

Contactez l'agence de Le Mans

02 43 21 93 33

    * Champs obligatoires

    Vos informations sont traitées par HEXAOM et transmises à un conseiller commercial qui vous contactera afin de répondre à votre demande. Les plans et images présentés sur notre site sont la propriété d’HEXAOM et ne peuvent pas être reproduits sans son accord. Pour retrouver notre politique de protection des données personnelles et exercer vos droits conformément à la « loi informatique et liberté » cliquez-ici.