Maison neuve à
Parigné-l'Évêque (72250) Référence : LL2345876_6

Prix du projet : Maison avec Terrain

prix 299 000 €

  • 4 pièces
  • 3 chambres
  • Surface maison 105 m2

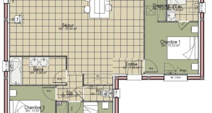
VENTE d'une maison T4 (105 m²) à Parigné-l'Évêque
EMPLACEMENT PRIVILÉGIÉ - MAISON 4 PIÈCES NEUVE
À vendre à quelques kilomètres du Mans, notre agence Maine Construction Le Mans est heureuse de vous proposer, bénéficiant d'un emplacement privilégié dans Parigné-l'Évêque (72250), cette maison de 4 pièces de plain-pied de 105 m² et de 1 211 m² de terrain.
Conçue de plain-pied, elle compte trois chambres, une cuisine et deux salles de bains. Cette maison est neuve.
La maison est située dans un quartier attractif. Quatre établissements scolaires sont implantés à moins de 10 minutes à pied, tout comme une crèche. Niveau transports, il y a la gare Champagné à moins de 10 minutes en voiture. L'autoroute A28 est accessible à 4 km. On trouve un tennis, une bibliothèque, trois commerces, trois boulangeries, une supérette, une boucherie-charcuterie et un bureau de poste dans les environs.
Elle est à vendre pour la somme de 299 000 €.
Prenez contact avec notre agence (Luc LIVET : 07-77-76-37-30) pour toute question sur la maison. Maine Construction Le Mans est là pour vous accompagner dans tous vos projets immobiliers.

Mentions légales

Terrain proposé par un partenaire foncier selon disponibilités et autorisation de publicité au prix de 86 000 €. Hors droit d'enregistrement et frais de notaire. Maison proposée, avec un contrat de construction de maison individuelle, dans le cadre de la loi du 19/12/1990, au prix de 213 000 € (Hors branchements et raccordements, papiers peints, peintures, revêtement de sol dans les chambres, qui sont chiffrés dans les travaux qui restent à charge du client. Tarif modifiable sans préavis). Étiquette énergie : A. Différents modèles disponibles pour ce terrain. Assurances et garanties du constructeur comprises (RC professionnelle, décennale, dommage ouvrage).

Contactez l'agence de Le Mans

02 43 21 93 33

    * Champs obligatoires

    Vos informations sont traitées par HEXAOM et transmises à un conseiller commercial qui vous contactera afin de répondre à votre demande. Les plans et images présentés sur notre site sont la propriété d’HEXAOM et ne peuvent pas être reproduits sans son accord. Pour retrouver notre politique de protection des données personnelles et exercer vos droits conformément à la « loi informatique et liberté » cliquez-ici.