Maison neuve à
Parigné-l'Évêque (72250) Référence : LL2345876_5

Prix du projet : Maison avec Terrain

prix 279 000 €

  • 5 pièces
  • 3 chambres
  • Surface maison 90 m2

Parigné-l'Évêque : maison F5 (90 m²) à vendre
EMPLACEMENT PRIVILÉGIÉ - MAISON 5 PIÈCES NEUVE
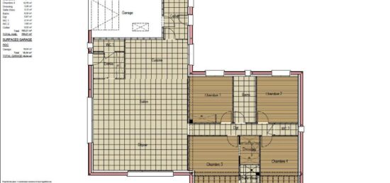
À vendre : à 14 km du Mans, Maine Construction Le Mans vous propose cette maison de 5 pièces de plain-pied de 90 m², bénéficiant d'un emplacement d'exception dans Parigné-l'Évêque (72250). Conçue de plain-pied, elle dispose de trois chambres, d'une cuisine et d'une salle de bains.
Le terrain de la propriété s'étend sur 1 211 m².
La maison est neuve.
Cette maison se trouve dans un quartier prisé. Il y a quatre établissements scolaires à moins de 10 minutes à pied et une structure d'accueil pour les enfants en bas âge. Niveau transports, on trouve la gare Champagné à moins de 10 minutes en voiture. On trouve un accès à l'autoroute A28 à 4 km. Il y a un tennis, une bibliothèque, trois commerces, trois boulangeries, une supérette, un bureau de poste et une boucherie-charcuterie dans les environs.
Elle est à vendre pour la somme de 279 000 €.
Contactez Luc LIVET (tél : 07-77-76-37-30) Maine Construction Le Mans.pour toute information sur la propriété, sur les modalités de vente ou sur les démarches à suivre.

Mentions légales

Terrain proposé par un partenaire foncier selon disponibilités et autorisation de publicité au prix de 86 000 €. Hors droit d'enregistrement et frais de notaire. Maison proposée, avec un contrat de construction de maison individuelle, dans le cadre de la loi du 19/12/1990, au prix de 193 000 € (Hors branchements et raccordements, papiers peints, peintures, revêtement de sol dans les chambres, qui sont chiffrés dans les travaux qui restent à charge du client. Tarif modifiable sans préavis). Étiquette énergie : A. Différents modèles disponibles pour ce terrain. Assurances et garanties du constructeur comprises (RC professionnelle, décennale, dommage ouvrage).

Contactez l'agence de Le Mans

02 43 21 93 33

    * Champs obligatoires

    Vos informations sont traitées par HEXAOM et transmises à un conseiller commercial qui vous contactera afin de répondre à votre demande. Les plans et images présentés sur notre site sont la propriété d’HEXAOM et ne peuvent pas être reproduits sans son accord. Pour retrouver notre politique de protection des données personnelles et exercer vos droits conformément à la « loi informatique et liberté » cliquez-ici.