Maison neuve à
Neuville-sur-Sarthe (72190) Référence : LL2423276_4

Prix du projet : Maison avec Terrain

prix 369 000 €

  • 5 pièces
  • 4 chambres
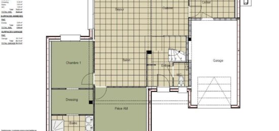
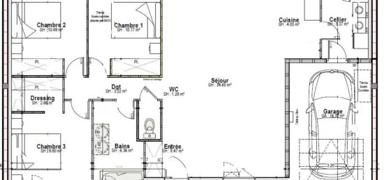
  • Surface maison 130 m2

VENTE d'une maison F5 (130 m²) à Neuville-sur-Sarthe
IDÉALEMENT SITUÉE - MAISON 5 PIÈCES NEUVE
À vendre : localisée à 10 km du Mans, venez découvrir cette maison de 5 pièces de 130 m² et de 567 m² de terrain idéalement située dans Neuville-sur-Sarthe (72190).
Cette maison possède 2 niveaux. Son intérieur dispose de quatre chambres, d'une cuisine et de deux salles de bains. La maison est neuve.
Cette maison se trouve dans un quartier recherché. Il y a l'École Primaire Publique Léonard de Vinci à moins de 10 minutes à pied. Niveau transports en commun, on trouve la gare Neuville-sur-Sarthe dans un rayon de 1 km. Il y a un accès à l'autoroute A11 à 3 km. Il y a un tennis, une boulangerie, un commerce, une épicerie et une boucherie-charcuterie à proximité du logement.
Elle est proposée à l'achat pour 369 000 €.
Contactez notre agence (Luc LIVET : 07-77-76-37-30)Maine Construction Le Mans pour toute information sur le bien.

Mentions légales

Terrain proposé par un partenaire foncier selon disponibilités et autorisation de publicité au prix de 78 500 €. Hors droit d'enregistrement et frais de notaire. Terrain + Maison proposés au prix de 369 000 € (Hors branchements et raccordements, papiers peints, peintures, revêtement de sol dans les chambres. Tarif modifiable sans préavis). Etiquette énergie : A. Différents modèles disponibles pour ce terrain. Assurances et garanties du constructeur (RC professionnelle, décennale, dommage ouvrage, garantie de remboursement de l'acompte, livraison à prix et délai convenu) : https://www.maine-construction.fr/mentions-legales/. HEXAOM Services est enregistré auprès de l'ORIAS en tant que Courtier en financement, Niveau 1, sous le numéro 14001345.

Contactez l'agence de Le Mans

02 43 21 93 33

    * Champs obligatoires

    Vos informations sont traitées par HEXAOM et transmises à un conseiller commercial qui vous contactera afin de répondre à votre demande. Les plans et images présentés sur notre site sont la propriété d’HEXAOM et ne peuvent pas être reproduits sans son accord. Pour retrouver notre politique de protection des données personnelles et exercer vos droits conformément à la « loi informatique et liberté » cliquez-ici.