Maison neuve à
Neuville-sur-Sarthe (72190) Référence : LL2311893_1

Prix du projet : Maison avec Terrain

prix 332 000 €

  • 5 pièces
  • 4 chambres
  • Surface maison 119 m2

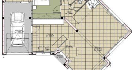
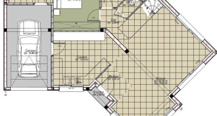
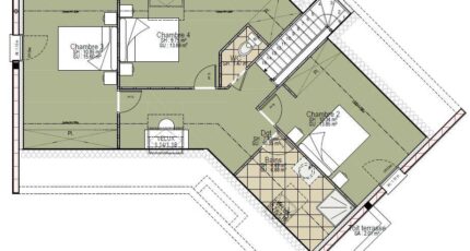
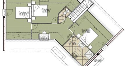
VENTE d'une maison T5 (119 m²) à Neuville-sur-Sarthe
QUARTIER RECHERCHÉ - MAISON 5 PIÈCES NEUVE
En vente à 10 km du Mans, ayez le coup de coeur pour cette maison de 5 pièces de 119 m² et de 568 m² de terrain dans un secteur attractif de Neuville-sur-Sarthe (72190). Elle dispose de quatre chambres, d'une cuisine et de deux salles de bains.
Il s'agit d'une maison de 2 niveaux. Elle est neuve.
La maison se situe dans un quartier convoité. Il y a l'École Primaire Publique Léonard de Vinci à moins de 10 minutes à pied. Niveau transports, on trouve la gare Neuville-sur-Sarthe à proximité. Il y a un accès à l'autoroute A11 à 3 km. Il y a un tennis, une boulangerie, un commerce, une boucherie-charcuterie et une épicerie à quelques minutes à peine.
Son prix de vente est de 332 000 €.
Contactez notre agence (Luc LIVET : 07-77-76-37-30) pour toute information sur la maison ou sur les modalités de vente. Maine Construction Saint-Saturnin vous accompagne à toutes les étapes de votre projet et dans toutes vos démarches.

Mentions légales

Terrain proposé par un partenaire foncier selon disponibilités et autorisation de publicité au prix de 82 300 €. Hors droit d'enregistrement et frais de notaire. Maison proposée, avec un contrat de construction de maison individuelle, dans le cadre de la loi du 19/12/1990, au prix de 249 700 € (Hors branchements et raccordements, papiers peints, peintures, revêtement de sol dans les chambres, qui sont chiffrés dans les travaux qui restent à charge du client. Tarif modifiable sans préavis). Étiquette énergie : A. Différents modèles disponibles pour ce terrain. Assurances et garanties du constructeur comprises (RC professionnelle, décennale, dommage ouvrage).

Contactez l'agence de Le Mans

02 43 21 93 33

    * Champs obligatoires

    Vos informations sont traitées par HEXAOM et transmises à un conseiller commercial qui vous contactera afin de répondre à votre demande. Les plans et images présentés sur notre site sont la propriété d’HEXAOM et ne peuvent pas être reproduits sans son accord. Pour retrouver notre politique de protection des données personnelles et exercer vos droits conformément à la « loi informatique et liberté » cliquez-ici.