Maison neuve à
Mulsanne (72230) Référence : FH2413329_7

Prix du projet : Maison avec Terrain

prix 349 000 €

  • 6 pièces
  • 3 chambres
  • Surface maison 128 m2

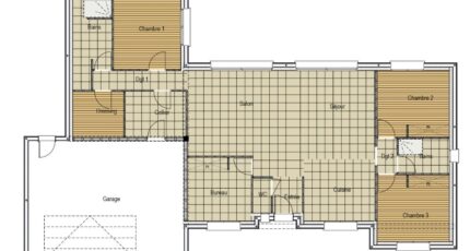
Maison de 6 pièces (128 m²) à vendre à Mulsanne
IDÉALEMENT SITUÉE - MAISON 6 PIÈCES NEUVE
En vente : située à quelques kilomètres du Mans, Maine Construction Le Mans vous présente cette maison de 6 pièces de plain-pied de 128 m² idéalement située dans Mulsanne (72230).
Elle propose trois chambres, une cuisine et deux salles de bains. Cette maison est neuve.
Le terrain de la propriété est de 568 m².
Cette maison est située dans un secteur prisé. Le Collège Bollée et l'École Primaire Publique Paul Cézanne se trouvent à moins de 10 minutes à pied. Niveau transports en commun, il y a les gares Laigné-Saint-Gervais, Arnage et Écommoy à moins de 10 minutes en voiture. Il y a un accès à l'autoroute A28 à 8 km. On trouve un tennis, des commerces, quatre boulangeries, un supermarché et un bureau de poste dans les environs.
Son prix de vente est de 349 000 €.
Contactez notre agence (François HOUDAYER : 06-23-38-26-90) pour toute question sur la maison, sur les démarches à suivre ou sur les modalités de vente. Concrétisez vos projets immobiliers avec Maine Construction Le Mans.

Mentions légales

Terrain proposé par un partenaire foncier selon disponibilités et autorisation de publicité au prix de 79 900 €. Hors droit d'enregistrement et frais de notaire. Terrain + Maison proposés au prix de 349 000 € (Hors branchements et raccordements, papiers peints, peintures, revêtement de sol dans les chambres. Tarif modifiable sans préavis). Etiquette énergie : A. Différents modèles disponibles pour ce terrain. Assurances et garanties du constructeur (RC professionnelle, décennale, dommage ouvrage, garantie de remboursement de l'acompte, livraison à prix et délai convenu) : https://www.maine-construction.fr/mentions-legales/. HEXAOM Services est enregistré auprès de l'ORIAS en tant que Courtier en financement, Niveau 1, sous le numéro 14001345.

Contactez l'agence de Le Mans

02 43 21 93 33

    * Champs obligatoires

    Vos informations sont traitées par HEXAOM et transmises à un conseiller commercial qui vous contactera afin de répondre à votre demande. Les plans et images présentés sur notre site sont la propriété d’HEXAOM et ne peuvent pas être reproduits sans son accord. Pour retrouver notre politique de protection des données personnelles et exercer vos droits conformément à la « loi informatique et liberté » cliquez-ici.