Maison neuve à
Mulsanne (72230) Référence : FH2413329_11

Prix du projet : Maison avec Terrain

prix 369 000 €

  • 6 pièces
  • 5 chambres
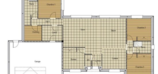
  • Surface maison 142 m2

Mulsanne : maison T6 (142 m²) en vente
IDÉALEMENT SITUÉE - MAISON 6 PIÈCES NEUVE
En vente : localisée à quelques kilomètres du Mans, idéalement située dans Mulsanne (72230), Maine Construction Le Mans vous propose cette maison de 6 pièces de 142 m² et de 568 m² de terrain. Son intérieur offre cinq chambres, une cuisine et deux salles de bains.
Cette maison compte 2 niveaux. Elle est neuve.
Le bien se situe dans un secteur attractif. Le Collège Bollée et l'École Primaire Publique Paul Cézanne sont implantés à moins de 10 minutes à pied. Niveau transports, on trouve trois gares (Laigné-Saint-Gervais, Arnage et Écommoy) à moins de 10 minutes en voiture. L'autoroute A28 est accessible à 8 km. Il y a un tennis, des commerces, quatre boulangeries, un supermarché et un bureau de poste à quelques minutes.
Il est proposé à l'achat pour 369 000 €.
Contactez notre agence (HOUDAYER François : 06-23-38-26-90) pour toute information sur la maison, sur les modalités de vente ou sur les démarches à suivre.

Mentions légales

Terrain proposé par un partenaire foncier selon disponibilités et autorisation de publicité au prix de 79 900 €. Hors droit d'enregistrement et frais de notaire. Terrain + Maison proposés au prix de 369 000 € (Hors branchements et raccordements, papiers peints, peintures, revêtement de sol dans les chambres. Tarif modifiable sans préavis). Etiquette énergie : A. Différents modèles disponibles pour ce terrain. Assurances et garanties du constructeur (RC professionnelle, décennale, dommage ouvrage, garantie de remboursement de l'acompte, livraison à prix et délai convenu) : https://www.maine-construction.fr/mentions-legales/. HEXAOM Services est enregistré auprès de l'ORIAS en tant que Courtier en financement, Niveau 1, sous le numéro 14001345.

Contactez l'agence de Le Mans

02 43 21 93 33

    * Champs obligatoires

    Vos informations sont traitées par HEXAOM et transmises à un conseiller commercial qui vous contactera afin de répondre à votre demande. Les plans et images présentés sur notre site sont la propriété d’HEXAOM et ne peuvent pas être reproduits sans son accord. Pour retrouver notre politique de protection des données personnelles et exercer vos droits conformément à la « loi informatique et liberté » cliquez-ici.